Office Sell&Rent
: 5,520 : 237
(Stock ID : RDJ-059)

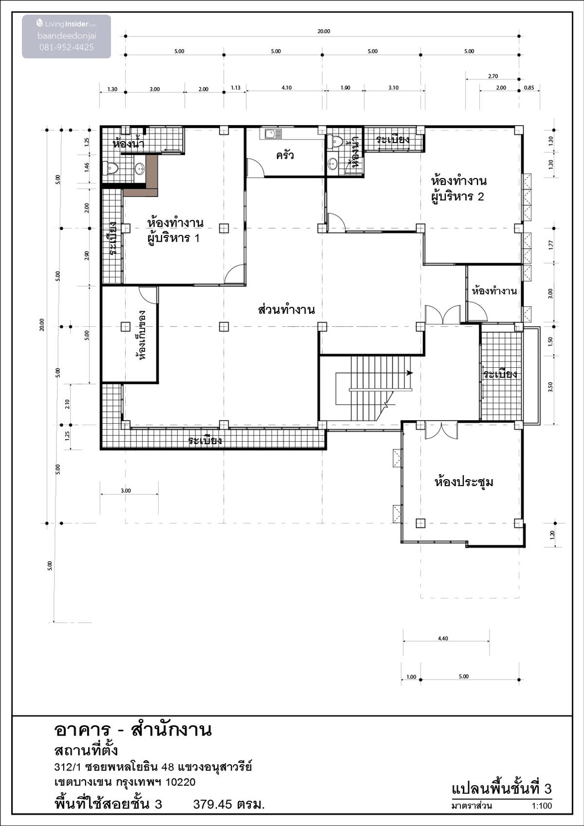
Office building for rent (402 sq m), fully furnished, parking for 20 cars, Phahon 48-Ramintra. (Near Theprak Road, New Cut)

Sell price
฿59,000,000 (36,875 B./Sq.m.)
Rent price

฿290,000/mo

Created 09/12/2025
Boosted 4 days ago
Property information
Floor Size 1,600 sq. m
Floor 4
Bathrooms More 5
Description

Office building for rent (402 sq m), fully furnished, parking for 20 cars, Phahon 48-Ramintra. (near Theparak Rd. Newly cut) Price 290,000 baht/month Conditions: Minimum 1 year contract, 3 months warranty, 1 month advance rent ++ Selling price 59 million baht ++ Highlights: - Near BTS Sai Yut (green) and BTS Ramintra 3 (pink) - Located next to the expressway. Makes it possible to travel to various places or other business areas easily Property details: - 4-story building, Phahon 48-Ramintra area (near New Theparak Road), Soi Phahon Yothin 48, Anusawari Subdistrict, Bang Khen District, Bangkok - Coordinates https://maps.app.goo.gl/qeD8jdqrhF4qtWJB6?g_st=al - Area 1 rai (402 square wa) - Total usable area 1,600 square meters - It is a prefabricated office. Fully furnished Can start a business immediately - There is a private PRIVATE OFFICE work room - There is a lot of usable space such as a meeting room, executive room, reception zone, dining zone. Relaxation corner - Inside the building there are complete facilities such as furniture set, air conditioning system, CCTV system Potential location in the heart of the city: - Soi Phahonyothin 48 / Ramintra 5 (can enter and exit in many ways) - Near 7-eleven /Lotus / Big c extra within 300 meters - Near Ramintra Sports Park 600 m. - Near Ramintra-Ekkamai Expressway, Sukhapiban 5 Expressway, Lat Phrao Expressway. ################ Property code: RDJ-059 If interested, contact Line: @baandeerental or click here: https://lin.ee/OLhiKNV (Khun Kla) Tel: Contact number (Khun Koi) Tel: Contact number, Contact number Another good service from Baandee Rental by BaandeeDonJai. Rental deposit service All types of real estate By a team of professionals ** Free of charge for all marketing expenses. ** -------------------------------------------------- #BaandeeDonjai #Beautiful house #Baandeerental #Office for rent #Office for rent #Office for rent #Building for rent #Phahonyothin #Ramintra #Looking for #place for rent #office warehouse along the expressway #Don Mueang #remote door #private office #Bang Khen Office #Saimai office #Saphan Mai #Theparak #Phahonyothin #Office for sale #Office for rent #Bang Khen #Home office Bang Khen #Theparak Road #Saimai #Sukhapiban 5 #Don Mueang #Saphan Mai house for rent #House for rent #House for rent Bangkok #House for rent Watcharapol #Watcharaphon #Saimai #House for rent Sai Mai #office for rent #office

Highlights

Air Conditioner Air Conditioner
Private Parking Private Parking
Near Mall Near Mall
Near Expressway Near Expressway
Near Transportation Near Transportation
Near Market Near Market
Near School Near School
Near Hospital Near Hospital
Near Bus Stop Near Bus Stop

Read more

Location

Didn't find Office
Better to let a professional agent help you
livinginsider

Calculate real estate loans

Contact a bank officer
livinginsider
Baht
Please enter the property price.
%
The interest rate must be at least 1%.
Year
Loan term not less than 3 years

The numbers displayed will be exclusive to borrowing. With a simple calculation method, a salary of 10,000 Baht will be able to borrow approximately 650,000 Baht.

Loan amount

0

Baht

Minimum monthly income

0

Baht

Monthly installment

0

Baht
logo
Use LivingInsider through App for better experience. Support both IOS and Android systems, download now, click now!!

Other posts by baandeedonjai

Related Post

 


 


 


 


 


 


send-message Chat
Verified

Or contact via

Office building for rent (402 sq m), fully furnished, parking for 20 cars, Phahon 48-Ramintra. (near Theparak Rd. Newly cut) Price 290,000 baht/month Conditions: Minimum 1 year contract, 3 months warr

livinginsider livinginsider