Loading...
Loading...
Loading...

Show all photos

Warehouse For rent
: 3,278 : 114

Home Office & Warehouse for Rent Near BTS Udomsuk

฿120,000/mo (2,400 B./Sq.wah.)
Created 07/12/2022
Extended 2025-11-21 13:33
Property information
Area size 50 Sq.wah.
Floor Size 354 sq. m
Description

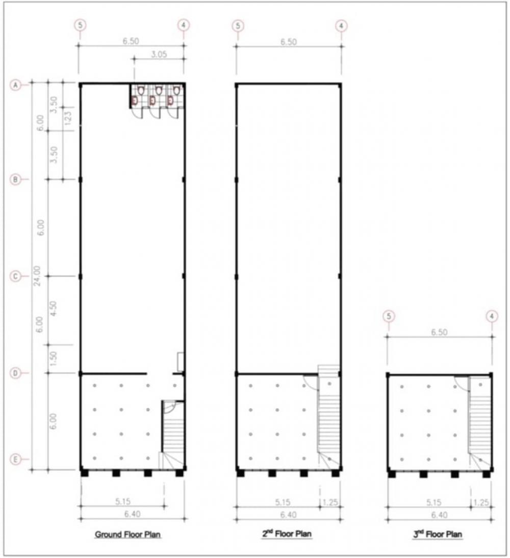
Office and Warehouse for Rent Location Sukhumvit 103 near BTS Udomsuk Land area : 6.5 meter x 30 meter, 195 square meters Building dimension : 6.5 x 24 square meter Building area : Total area – 354 square meters Office area - 237 square meters Warehouse area – 117 square meters Warehouse specification : Steel reinforced structure with steel roof frame. Metal sheet roof with insulation. Cement floor with steel reinforcement. Wall: Concrete block with plaster and paint Floor loading capacity: 3.0 tons/sq.m. Able to fix 5 tons overhead crane Clear height: 7.0 meters Office specification : Floor loading capacity : 500kg/sq.m. Clear height : 2.6m. Wall : Concrete block with plaster and paint Flooring : Granite 1st floor, Premium tile 2nd/ 3th floor Air conditioning : Mitsubishi Facilities : Security guard: 24-hour qualified security guards Parking space: available in front of each unit, with additional parking space on common parking area. Electric supply of 100amp (3 phase 4 wires with option to expand). All electricity charges will be paid directly by tenant to MEA. Individual water supply and pay by the meter. Direct private telephone from service provider. Lease terms and conditions : Monthly rent Common area fee Common parking area Deposit Lease term Property tax Withholding tax Building insurance : Baht 120,000.- per unit per month : Baht 1,600.- per unit per month : Baht 1,200.- per car per month : 3 months rental deposit : 2 years : Responsible by the Lessee : Responsible by the Lessor : Responsible by the Lessor Interest please contact Meena Contact number

Location

Didn't find Warehouse
Better to let a professional agent help you
livinginsider
logo
Create this post by application "LivingInsider" Support both IOS and Android systems, download now, click now!!

Stories banner

Related Post

 


 


 


 


 


 


send-message Chat
Verified

Or contact via

Office and Warehouse for Rent Location Sukhumvit 103 near BTS Udomsuk Land area : 6.5 meter x 30 meter, 195 square meters Building dimension : 6.5 x 24 square meter Building area : Total area – 354 sq

livinginsider livinginsider