Home
แน่นอนว่าทุกคนต้องอยากมีคอนโดที่ใกล้ที่ทำงาน ใกล้รถไฟฟ้าแต่ความสะดวกสบายเหล่านี้ต้องแลกมาด้วยภาระหนี้สินติดตัวไปหลายสิบปี การเช่าคอนโดจึงถือเป็นทางออกซึ่งการเช่าคอนโดนี้ถือเป็นการเช่าความสะดวกสบาย เหมาะกับคนที่ยังไม่อยากจะหลงหลักปักฐานบนทำเลใดทำเลนึง ยิ่งสำหรับมนุษย์เงินเดือน และคนยุคใหม่ในปัจจุบันที่กำลังสร้างตัวหลายคนมีการปรับเปลี่ยนงานไปตามสถานที่ต่างๆ ซึ่งการเช่าคอนโดจึงเป็นทางเลือกที่ตอบโจทย์การใช้ชีวิตได้มากกว่า
แต่การเลือกเช่าคอนโดสักห้องเพื่อให้ตอบโจทย์การใช้ชีวิตได้มากที่สุด และไม่มีปัญหาตามมาภายหลังก็ต้องมีปัจจัยที่ควรนึกถึงอยู่หลายอย่าง เรียกได้ว่าตาดีได้ตาร้ายเสียวันนี้เราได้รวบรวมปัจจัยที่ควรดูให้ดีก่อนตัดสินใจเลือกเช่าคอนโดสักที่ มีอะไรบ้างมาดูกันครับ
เลือกทำเลที่ตอบโจทย์การใช้ชีวิต
ทำเลเป็นปัจจัยอันดับแรกที่ต้องนึกถึง แน่นอนว่าการเลือกทำเลนั้นต้องเลือกทำเลที่สามารถเดินทางได้สะดวกสบาย สำหรับใครที่ต้องเดินทางไปทำงานควรหาคอนโดในระยะทางที่เดินทางได้สะดวก รวมถึงยิ่งถ้าได้ทำเลที่มีร้านอาหาร ของกินอยู่รอบๆ จะช่วยอำนวยความสะดวกได้มากเลยทีเดียว แต่การเลือกคอนโดที่ติดรถไฟฟ้านั้นเดินทางไปไหนมาไหนได้สะดวกจริง แต่ราคาค่าเช่าก็จะสูงตามไปด้วย แต่สามารถเลือกเช่าคอนโด Low-Rise เดินเข้าซอยนิดหน่อยแต่ได้ราคาที่ถูกลง ขึ้นอยู่กับงบประมาณครับ

ดูส่วนกลางให้ดี
จะเสียเงินจ่ายค่าเช่าทั้งทีต้องดูเรื่องสิ่งอำนวยความสะดวกในโครงการให้ดี ส่วนกลางคอนโดควรมีขนาดที่รองรับลูกบ้านได้เพียงพอไม่แออัด ที่จอดรถ ระบบรักษาความปลอดภัย รวมถึงควรศึกษาข้อมูลเกี่ยวกับนิติบุคคลของโครงการ และเรื่องค่าส่วนกลางว่าเหมาะสมกับเงินที่ต้องจ่ายไปหรือไม่ โดยส่วนใหญ่ผู้ปล่อยเช่าจะรวมค่าส่วนกลางอยู่ในอัตราค่าเช่าอยู่แล้ว ดังนั้นการเลือกเช่าคอนโดสักแห่งควรมีตัวเลือกหลายๆ โครงการในทำเลละแวกใกล้กันเพื่อนำมาเปรียบเทียบประกอบการตัดสินใจ

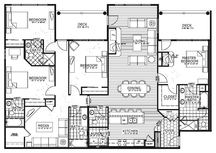
ขอบคุณภาพ : Elio Sathorn Wutthakat
แปลนห้องไม่ควรมองข้าม
หลังจากได้โครงการที่ถูกใจแล้ว มาถึงการเลือกแปลนห้องซึ่งข้อนี้ก็เป็นสิ่งสำคัญ เพราะถ้าเลือกแปลนห้องที่ไม่ตอบไลฟ์สไตล์เท่าที่ควรอาจทำให้อยู่อาศัยลำบาก ไม่มีพื้นที่ใช้สอยที่เพียงพอการเลือกแปลนห้องจึงต้องคำนึงถึงการใช้ชีวิตจริงให้ดี รวมถึงจำนวนผู้อยู่อาศัยว่าขนาดและแปลนห้องเหมาะสมหรือไม่ อย่างเช่นถ้าคุณชอบทำอาหารการเลือกแปลนห้องควรมีโซนครัวปิดและอยู่ติดกับระเบียงเพื่อที่จะสามารถเปิดระบายกลิ่นได้ หรือถ้าต้องการพื้นที่ที่ใช้ทำงานควรมีพื้นที่อเนกประสงค์ไว้วางคอมพิวเตอร์เพื่อที่จะใช้พื้นที่ได้อย่างไม่อึดอัด

ทิศห้องก็สำคัญ
ด้วยสภาพอากาศที่ไม่เป็นมิตรสักเท่าไหร่ในประเทศไทยการเลือกทิศห้องไว้อยู่อาศัยก็เป็นสิ่งสำคัญ มาดูกันว่าถ้าจะเลือกคอนโดสักห้องควรเลือกทิศไหนที่ตอบไลฟ์สไตล์คุณที่สุด

เลือกชั้นที่ไม่สูงเกินไป
แน่นอนว่าคอนโดสูงๆ มีข้อดีคือจะได้วิวสวย มีความเป็นส่วนตัวแต่ถ้าถามว่าทำไมถึงไม่เลือกคอนโดชั้นสูงๆ ไปเลยล่ะ? ตอบได้ง่ายๆ ก็คือเรื่องของราคานั่นเองปกติแล้วคอนโดยิ่งสูงก็ยิ่งแพงดังนั้นการเลือกชั้นที่ต่ำลงมาก็เป็นอีกทางเลือกที่ดีครับ ช่วยประหยัดค่าเช่าได้อีกเยอะแต่ไม่ควรเลือกชั้นที่ต่ำเกินไปเพราะอาจจะได้รับเสียงรบกวน และไม่มีความเป็นส่วนตัวครับ แต่ในกรณีที่มีผู้สูงวัยอาศัยอยู่ด้วยควรเลือกชั้นที่ต่ำลงมาอีกหน่อยเพื่อที่จะสะดวกในการขึ้นที่พักอาศัย

เช็คสัญญาเช่าให้ดี
สัญญาเช่าเป็นสิ่งสำคัญที่ควรตรวจสอบให้ดีทั้ง 2 ฝ่าย ไม่ว่าจะเป็นเรื่องระยะเวลาในการเช่า เงินมัดจำ ค่าใช้จ่าย ค่าส่วนกลางใครเป็นคนจ่าย? ต่อเติมห้องได้ไหม? รวมทั้งเช็คลิสต์เฟอร์นิเจอร์และสภาพของเฟอร์นิเจอร์ทุกชิ้นในห้องให้ดีก่อนเซ็นสัญญา เพื่อจะได้ไม่เกิดปัญหาภายหลังตามมา

ในการเลือกเช่าคอนโดสักแห่งไม่ใช่เรื่องยาก แต่เราควรตรวจเช็คในทุกๆ รายละเอียดอย่างรอบคอบทั้งในด้านทำเล งบประมาณไปจนถึงสัญญาเช่าให้ดี เสียเวลาลงพื้นที่จริงตรวจเช็คให้รอบคอบสักหน่อยดีกว่ามานั่งปวดหัวตอนเกิดปัญหาขึ้นมาภายหลังครับ
ประกันสุขภาพ มีไว้ไม่ได้ใช้ ดีกว่าอยากใช้แต่ไม่มี
2022-12-28
10 กิจกรรมบนโลกอินเทอร์เน็ต ที่คนไทยนิยมใช้งานที่สุด ปี 2566
2023-09-23
อย่าลงทุนอสังหาฯ แค่เพราะมันเป็นการลงทุนที่ดี
2020-06-19
รวมวิธีแก้ปัญหาความไม่เป็นส่วนตัวในคอนโดติดถนนใหญ่
2025-04-29
5 อันดับ ทำเลเปิดตัวโครงการใหม่ และขายได้ใหม่สูงสุด ในกรุงเทพฯ และปริมณฑล ไตรมาส 4 ปี 2566
2024-04-12
ขอบคุณมาดครับ
เป็นกำลังใจให้ค่ะ เขียนดี รอติดตาม
บทความดี รักษาคุณภาพต่อไปค่ะ ติดตามๆ