āļ›āļĢāļ°āļāļēāļĻāļŦāļĄāļ”āļ­āļēāļĒāļļ
āļ›āļĢāļ°āļāļēāļĻāļ™āļĩāđ‰āļŦāļĄāļ”āļ­āļēāļĒāļļāđāļĨāđ‰āļ§
āđ€āļ™āļ·āđˆāļ­āļ‡āļˆāļēāļāđ„āļĄāđˆāđ„āļ”āđ‰āļ­āļąāļ›āđ€āļ”āļ•āļˆāļēāļāđ€āļˆāđ‰āļēāļ‚āļ­āļ‡āļ›āļĢāļ°āļāļēāļĻāļ™āļēāļ™āļāļ§āđˆāļē 30 āļ§āļąāļ™
āđ‚āļ™āđ‰āļ•
Loading...
Loading...
Loading...

āđāļŠāļ”āļ‡āļĢāļđāļ›āļ—āļąāđ‰āļ‡āļŦāļĄāļ”

āļ„āļ­āļ™āđ‚āļ” āļ‚āļēāļĒ
: 20,514 : 1,193

ðŸ”ĨðŸ”Ĩ (Owner) āļ‚āļēāļĒāļ„āļ­āļ™āđ‚āļ”āļĻāļļāļ āļēāļĨāļąāļĒāļ›āļēāļĢāđŒāļ„āđ€āļ­āļāļĄāļąāļĒāļ—āļ­āļ‡āļŦāļĨāđˆāļ­, 2 āļŦāđ‰āļ­āļ‡āļ™āļ­āļ™

āļŋ6,000,000 (71,429 āļš./āļ•āļĢ.āļĄ.)
āļŠāļĢāđ‰āļēāļ‡āđ€āļĄāļ·āđˆāļ­ 14/02/2564
āļ”āļąāļ™āļ›āļĢāļ°āļāļēāļĻāļĨāđˆāļēāļŠāļļāļ”āđ€āļĄāļ·āđˆāļ­ 27/03/2568
āļ‚āđ‰āļ­āļĄāļđāļĨāļ­āļŠāļąāļ‡āļŦāļēāļŊ
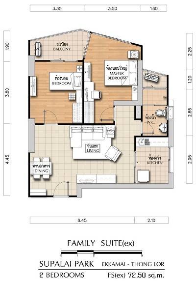
āļžāļ·āđ‰āļ™āļ—āļĩāđˆāđƒāļŠāđ‰āļŠāļ­āļĒ 84 āļ•āļĢ.āļĄ.
āļŠāļąāđ‰āļ™āļ—āļĩāđˆ 19
āļŦāđ‰āļ­āļ‡āļ™āļ­āļ™ 2
āļŦāđ‰āļ­āļ‡āļ™āđ‰āļģ 1
āļĢāļēāļĒāļĨāļ°āđ€āļ­āļĩāļĒāļ”

ðŸ”ĨðŸ”Ĩ (Owner) āļ‚āļēāļĒāļ„āļ­āļ™āđ‚āļ”āļĻāļļāļ āļēāļĨāļąāļĒāļ›āļēāļĢāđŒāļ„āđ€āļ­āļāļĄāļąāļĒāļ—āļ­āļ‡āļŦāļĨāđˆāļ­, 2 āļŦāđ‰āļ­āļ‡āļ™āļ­āļ™ ðŸŸĢ 44 āļŠāļąāđ‰āļ™āļšāļ™āļ–.āđ€āļžāļŠāļĢāļšāļļāļĢāļĩāļ•āļąāļ”āđƒāļŦāļĄāđˆ āļŦāļąāļ§āļĄāļļāļĄāļ–.āđ€āļ­āļāļĄāļąāļĒ āļ•āļīāļ”āļ•āļķāļāļŠāļēāļāļ­āļīāļŠāļĢāļ°2 ðŸŸĢ āđƒāļāļĨāđ‰ BTS āđ€āļ­āļāļĄāļąāļĒ & airport link āļĢāļēāļĄāļ„āļģāđāļŦāļ‡ â­• āļŠāļąāđ‰āļ™ 19 ⭕ 2 āļŦāđ‰āļ­āļ‡āļ™āļ­āļ™ 1 āļŦāđ‰āļ­āļ‡āļ™āđ‰āļģ | 84 āļ•.āļĢ.āļĄ. | #2882/227 ⭕ āļ—āļīāļĻāđ€āļŦāļ™āļ·āļ­ | āļ•āļģāđāļŦāļ™āđˆāļ‡āļ”āļĩāļ—āļĩāđˆāļŠāļļāļ”āđ€āļ„āļĨāļĩāļĒāļĢāđŒāļ§āļīāļ§ (āļ­āļĩāļāļāļąāđˆāļ‡āļ–āļđāļāļšāļĨāđŠāļ­āļ„āļ§āļīāļ§) ⭕ āļŦāđ‰āļ­āļ‡āļĄāļļāļĄ : āļ§āļīāļ§ 2 āļ”āđ‰āļēāļ™ | āļ•āļīāļ”āļŦāđ‰āļ­āļ‡āļ‚āđ‰āļēāļ‡āđ† āļ”āđ‰āļēāļ™āđ€āļ”āļĩāļĒāļ§ āđ€āļ‡āļĩāļĒāļš â­• āļ”āļĩāđ„āļ‹āļ™āđŒāļāļąāđ‰āļ™āļŦāđ‰āļ­āļ‡āļ„āļĢāļąāļ§āđ€āļ›āđ‡āļ™āļŠāļąāļ”āļŠāđˆāļ§āļ™ āļŦāđ‰āļ­āļ‡āļ™āđ‰āļģāļĢāļąāļšāđāļŠāļ‡āļĨāļĄāļˆāļēāļāļ āļēāļĒāļ™āļ­āļ â­• āļ—āļĩāđˆāļˆāļ­āļ”āļĢāļ– 2 āļ„āļąāļ™ āļˆāļ­āļ”āļ›āļĢāļ°āļˆāļģ 1 āļ„āļąāļ™ (āļŦāļēāļĒāļēāļāļĄāļēāļ) āđāļĨāļ°āđ€āļ§āļĩāļĒāļ™āļˆāļ­āļ” 1 āļ„āļąāļ™ â­• built in āđ€āļ•āđ‡āļĄāļžāļ·āđ‰āļ™āļ—āļĩāđˆ āļ—āļĩāđˆāđ€āļāđ‡āļšāļ‚āļ­āļ‡āđ€āļĒāļ­āļ° ðŸŽŊ āļ‚āļēāļĒ 6 āļĨāđ‰āļēāļ™āļšāļēāļ— (āļ„āđˆāļēāđ‚āļ­āļ™ 50/50) āđ„āļĄāđˆāļĢāļ§āļĄāļ„āđˆāļēāļ„āļ­āļĄ ðŸŽŊ āļĒāļīāļ™āļ”āļĩāļĢāļąāļš Agent ðŸ”ĨðŸ”Ĩ (Owner) FOR SELL : Supalai Park Ekkamai Thonglor Condo, 2 bedroom ðŸŸĢ 44 floors on the main road of New Petchburi, close to Charnissara 2 bldg. ðŸŸĢ Close to Ekkamai BTS & Ramkamhaeng airport link ⭕ 19th Floor ⭕ 2 bedrooms 1 bathroom | 84 sqm. | #2882/227 ⭕ Facing north-best unit with clear view (opposited side is block view) ⭕ Corner room-2 side view & quiet ⭕ Separate kitchen ⭕ 2 parking lots (1 fixed) ⭕ Earthly tone & fully built in decoration ðŸŽŊ Sale 6 MB. (half-transfer fee) exclude commission ðŸŽŊ Agent is welcome ðŸŸĒ Facility : swimming pool | fitness & sauna | roof garden ðŸ”ĩ Map https://maps.app.goo.gl/DF6ZBaykV7bHqQEL8?g_st=al âœĪ Bangkok Hospital 1 km. âœĪ RCA 1.3 km. âœĪ Big C Ekkamai 2.3 km. | Emporium, Emsphere 4 km. 😁 āļ‚āļ§āļąāļ Kwan āļ„āļĨāļīāļāđ€āļžāļ·āđˆāļ­āļ”āļđāđ€āļšāļ­āļĢāđŒāđ‚āļ—āļĢāļ•āļīāļ”āļ•āđˆāļ­ ðŸ˜ line id: tonklanam https://line.me/ti/p/o7zCe15uvG

āļˆāļļāļ”āđ€āļ”āđˆāļ™āļ—āļĢāļąāļžāļĒāđŒ

āđ‚āļ„āļ§āļ•āđ‰āļēāļ•āđˆāļēāļ‡āļŠāļēāļ•āļī āđ‚āļ„āļ§āļ•āđ‰āļēāļ•āđˆāļēāļ‡āļŠāļēāļ•āļī
āļĢāļ°āļšāļšāļĢāļąāļāļĐāļēāļ„āļ§āļēāļĄāļ›āļĨāļ­āļ”āļ āļąāļĒ
āļ—āļĩāđˆāļˆāļ­āļ”āļĢāļ–
āļŸāļīāļ•āđ€āļ™āļŠ / āļĒāļīāļĄ
āļ‹āļēāļ§āļ™āđˆāļē
āļŠāļĢāļ°āļ§āđˆāļēāļĒāļ™āđ‰āļģ
āļŠāļĢāļ°āđ€āļ”āđ‡āļ
āļŠāļ§āļ™āļ‚āļ™āļēāļ”āļĒāđˆāļ­āļĄ
āļŠāļ­āļšāđāļŪāļ‡āđ€āļ­āļēāļ—āđŒ

āđāļŠāļ”āļ‡āļˆāļļāļ”āđ€āļ”āđˆāļ™āđ€āļžāļīāđˆāļĄāđ€āļ•āļīāļĄ

āļ—āļĩāđˆāļ•āļąāđ‰āļ‡āđāļĨāļ°āļ—āļģāđ€āļĨ

āļ‚āđ‰āļ­āļĄāļđāļĨāđ€āļāļĩāđˆāļĒāļ§āļāļąāļšāđ‚āļ„āļĢāļ‡āļāļēāļĢ āļĻāļļāļ āļēāļĨāļąāļĒāļ›āļēāļĢāđŒāļ„ āđ€āļ­āļāļĄāļąāļĒ - āļ—āļ­āļ‡āļŦāļĨāđˆāļ­ Supalai Park Ekkamai - Thonglor ...āļ­āđˆāļēāļ™āđ€āļžāļīāđˆāļĄāđ€āļ•āļīāļĄ
āļŠāļ–āļēāļ™āļ—āļĩāđˆāđƒāļāļĨāđ‰āđ€āļ„āļĩāļĒāļ‡āļ­āļ·āđˆāļ™āđ†
āļĒāļąāļ‡āđ„āļĄāđˆāđ€āļˆāļ­ āļĻāļļāļ āļēāļĨāļąāļĒāļ›āļēāļĢāđŒāļ„ āđ€āļ­āļāļĄāļąāļĒ - āļ—āļ­āļ‡āļŦāļĨāđˆāļ­ āļ—āļĩāđˆāļ•āđ‰āļ­āļ‡āļāļēāļĢ
āđƒāļŦāđ‰āļ™āļēāļĒāļŦāļ™āđ‰āļēāļĄāļ·āļ­āļ­āļēāļŠāļĩāļž āļŠāđˆāļ§āļĒāļŦāļēāđƒāļŦāđ‰āļŠāļī āļ‡āđˆāļēāļĒāđ†āđāļ„āđˆāđāļˆāđ‰āļ‡āđ„āļĨāļ™āđŒāđ„āļ­āļ”āļĩ
livinginsider

āļ„āļģāļ™āļ§āļ“āļŠāļīāļ™āđ€āļŠāļ·āđˆāļ­āļ­āļŠāļąāļ‡āļŦāļēāļŊ āđ€āļšāļ·āđ‰āļ­āļ‡āļ•āđ‰āļ™

āļ•āļīāļ”āļ•āđˆāļ­āđ€āļˆāđ‰āļēāļŦāļ™āđ‰āļēāļ—āļĩāđˆāļ˜āļ™āļēāļ„āļēāļĢ
livinginsider
āļšāļēāļ—
āļāļĢāļļāļ“āļēāļāļĢāļ­āļāļĢāļēāļ„āļēāļ­āļŠāļąāļ‡āļŦāļēāļŊ
%
āļ­āļąāļ•āļĢāļēāļ”āļ­āļāđ€āļšāļĩāđ‰āļĒāļ•āđ‰āļ­āļ‡āļ­āļĒāđˆāļēāļ‡āļ™āđ‰āļ­āļĒ 1%
āļ›āļĩ
āļĢāļ°āļĒāļ°āđ€āļ§āļĨāļēāļāļđāđ‰āđ„āļĄāđˆāļ™āđ‰āļ­āļĒāļāļ§āđˆāļē 3 āļ›āļĩ

āļ•āļąāļ§āđ€āļĨāļ‚āļ—āļĩāđˆāđāļŠāļ”āļ‡āļˆāļ°āđ€āļ›āđ‡āļ™āļ•āļąāļ§āđ€āļĨāļ‚āđ€āļ‰āļžāļēāļ°āļāļēāļĢāļāļđāđ‰ āđ‚āļ”āļĒāļ§āļīāļ˜āļĩāļ„āļģāļ™āļ§āļ“āļ‡āđˆāļēāļĒāđ† āđ€āļ‡āļīāļ™āđ€āļ”āļ·āļ­āļ™ 10,000 āļšāļēāļ— āļˆāļ°āļāļđāđ‰āđ„āļ”āđ‰āļ›āļĢāļ°āļĄāļēāļ“ 650,000 āļšāļēāļ—

āļ§āļ‡āđ€āļ‡āļīāļ™āļāļđāđ‰

0

āļšāļēāļ—

āļĢāļēāļĒāđ„āļ”āđ‰āļ‚āļąāđ‰āļ™āļ•āđˆāļģāļ•āđˆāļ­āđ€āļ”āļ·āļ­āļ™

0

āļšāļēāļ—

āļĒāļ­āļ”āļœāđˆāļ­āļ™āļ•āđˆāļ­āđ€āļ”āļ·āļ­āļ™

0

āļšāļēāļ—
logo
āđƒāļŠāđ‰ LivingInsider āļœāđˆāļēāļ™āđāļ­āļ›āļŠāļ°āļ”āļ§āļāļāļ§āđˆāļēāļˆāļĢāļīāļ‡āđ†āļ™āļ° āļĢāļ­āļ‡āļĢāļąāļšāļ—āļąāđ‰āļ‡āļĢāļ°āļšāļš IOS āđāļĨāļ° Android āļ”āļēāļ§āļ™āđŒāđ‚āļŦāļĨāļ”āļ—āļąāļ™āļ—āļĩ āļ•āļ­āļ™āļ™āļĩāđ‰ āļ„āļĨāļīāļāđ€āļĨāļĒ!!

Stories banner

send-message āđāļŠāļ—

āļŦāļĢāļ·āļ­āđ€āļĨāļ·āļ­āļāļ•āļīāļ”āļ•āđˆāļ­āļŠāđˆāļ­āļ‡āļ—āļēāļ‡āļ­āļ·āđˆāļ™

ðŸ”ĨðŸ”Ĩ (Owner) āļ‚āļēāļĒāļ„āļ­āļ™āđ‚āļ”āļĻāļļāļ āļēāļĨāļąāļĒāļ›āļēāļĢāđŒāļ„āđ€āļ­āļāļĄāļąāļĒāļ—āļ­āļ‡āļŦāļĨāđˆāļ­, 2 āļŦāđ‰āļ­āļ‡āļ™āļ­āļ™ ðŸŸĢ 44 āļŠāļąāđ‰āļ™āļšāļ™āļ–.āđ€āļžāļŠāļĢāļšāļļāļĢāļĩāļ•āļąāļ”āđƒāļŦāļĄāđˆ āļŦāļąāļ§āļĄāļļāļĄāļ–.āđ€āļ­āļāļĄāļąāļĒ āļ•āļīāļ”āļ•āļķāļāļŠāļēāļāļ­āļīāļŠāļĢāļ°2 ðŸŸĢ āđƒāļāļĨāđ‰ BTS āđ€āļ­āļāļĄāļąāļĒ & airport link āļĢāļēāļĄāļ„āļģāđāļŦāļ‡ â­• āļŠāļąāđ‰āļ™ 19 ⭕ 2 āļŦāđ‰āļ­āļ‡āļ™āļ­āļ™ 1 āļŦāđ‰āļ­āļ‡āļ™āđ‰āļģ | 84 āļ•

livinginsider livinginsider