ที่ดิน ขาย
: 171 : 20

ขายที่ดินติดถนนดำ วิวภูเขา ราคาดี เขาขลุง บ้านโป่ง จ.ราชบุรี

฿15,000,000 (1,649 บ./ตร.ว.)
สร้างเมื่อ 12 ชั่วโมงที่แล้ว
ข้อมูลอสังหาฯ
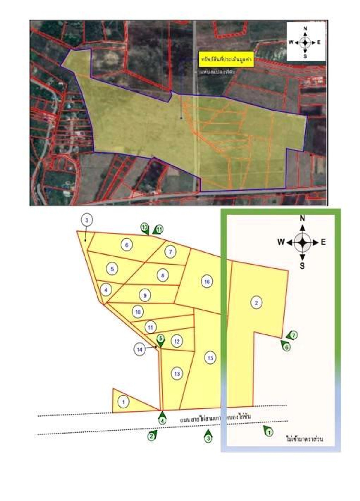
ขนาดที่ดิน 22 ไร่ 2 งาน 96 ตร.ว.
รายละเอียด

M 09759 ขายที่ดินแปลงสวย วิวภูเขา ราคาดี โอกาสลงทุนหายาก 📍พิกัด : ต.เขาขลุง อ.บ้านโป่ง จ.ราชบุรี พิกัด Google Maps 👉 https://goo.gl/maps/qm3qsv4Aqht66jPg9?g_st=al รายละเอียด : ▪️ ขนาด 22 ไร่ 2 งาน 96 ตารางวา ▪️ แปลงสวย รูปทรงดี ▪️ หน้ากว้างติดถนนดำ ประมาณ 76 เมตร 🚗 ทำเลเด่น ▪️ ติดถนนดำ เส้นไผ่สามเกาะ – หนองไก่ขัน ▪️ รถเข้า–ออกสะดวก รถใหญ่ รถบรรทุกเข้าได้ ▪️ บรรยากาศดี เงียบสงบ รายล้อมด้วยธรรมชาติ ▪️ วิวภูเขาโล่งสวย เหมาะมากสำหรับคนที่มองหาที่ดินคุณภาพ 💎 จุดเด่น / จุดขาย ✅ เหมาะทำ รีสอร์ท / โฮมสเตย์ / บ้านพักตากอากาศ / ฟาร์ม / โกดัง / ลงทุนเก็งกำไร ✅ พื้นที่กว้างต่อยอดได้หลายรูปแบบ ✅ ถนนหน้าที่ดินเป็นถนนสาธารณะ กว้าง 6 เมตร ✅ ราคานี้หาแปลงใหญ่ ติดถนนดำ แบบนี้ได้ยากมาก 💰 ราคาขายเพียง 15 ล้านบาท ➡️ เฉลี่ยไร่ละ 660,000 บาท ➡️ ราคาดี คุ้มทั้งซื้ออยู่เองและลงทุน 🧭 การเดินทางสะดวก ▪️ จากตัวเมืองบ้านโป่ง เดินทางไม่นาน 25 นาที ▪️ เชื่อมต่อถนนสายหลัก เข้าออกง่าย ▪️ ใกล้ชุมชน แต่ไม่วุ่นวาย 📞 สนใจสอบถาม / นัดดูพื้นที่จริง ทักแชทได้เลยค่ะ แปลงนี้บอกเลย เห็นของจริงแล้วตัดสินใจง่ายมาก โทร : คลิกเพื่อดูเบอร์โทรติดต่อ คุณลดามณี Line ID: meaw-rachsingho _________________________________ 📍 ทำเลที่ดิน ต.เขาขลุง อ.บ้านโป่ง จ.ราชบุรี เดินทางสะดวก เชื่อมต่อหลายจังหวัดสำคัญ 🚗 ระยะทางจากจุดสำคัญใกล้เคียง ▪️ ตัวเมืองบ้านโป่ง ประมาณ 10–15 นาที ใกล้ตลาด โรงพยาบาล ร้านค้า และสิ่งอำนวยความสะดวกครบ ▪️ ตัวเมืองนครปฐม ประมาณ 30–40 นาที เดินทางง่าย เหมาะสำหรับคนทำงานหรือขยายธุรกิจข้ามจังหวัด ▪️ ตัวเมืองราชบุรี ประมาณ 45–60 นาที เชื่อมต่อเมืองหลักของจังหวัดได้สะดวก ▪️ ตัวเมืองกาญจนบุรี ประมาณ 50–60 นาที ใกล้แหล่งท่องเที่ยว เหมาะทำรีสอร์ทหรือบ้านพักตากอากาศ ▪️ กรุงเทพมหานคร ประมาณ 1 – 1.30 ชั่วโมง ขับรถเส้นหลักได้สบาย ไม่ไกลจากเมืองหลวง ✨ สรุปทำเล ที่ดินแปลงนี้อยู่ในจุดที่ เชื่อม กทม. – นครปฐม – ราชบุรี – กาญจนบุรี ได้ง่าย เหมาะทั้งอยู่อาศัย ทำธุรกิจ รีสอร์ท ฟาร์ม หรือซื้อเก็บลงทุนระยะยาว ชมคลิปรีวิวที่ดิน : เนื้อที่ 22 - 2 - 96 ไร่ ต.เขาขลุง อ.บ้านโป่ง จ.ราชบุรี https://youtu.be/eHkvFD3YEb8?si=fwYVMmZLqEK6IYLT #ldnproperty #ที่ดินวิวภูเขา #ที่ดินติดถนนดำ #ที่ดินสวย #ที่ดินแปลงใหญ่เพื่อการลงทุน #ที่ดินเขาขลุง #ที่ดินราชบุรีวิวภูเขา #ที่ดินบ้านโป่ง #ที่ดินแปลงใหญ่ #ที่ติดถนน #ทึ่ดินเพื่อการลงทุน

ที่ตั้งและทำเล

ยังไม่เจอ ที่ดิน ที่ต้องการ
ให้นายหน้ามืออาชีพ ช่วยหาให้สิ ง่ายๆแค่แจ้งไลน์ไอดี
livinginsider

คำนวณสินเชื่ออสังหาฯ เบื้องต้น

ติดต่อเจ้าหน้าที่ธนาคาร
livinginsider
บาท
กรุณากรอกราคาอสังหาฯ
%
อัตราดอกเบี้ยต้องอย่างน้อย 1%
ปี
ระยะเวลากู้ไม่น้อยกว่า 3 ปี

ตัวเลขที่แสดงจะเป็นตัวเลขเฉพาะการกู้ โดยวิธีคำนวณง่ายๆ เงินเดือน 10,000 บาท จะกู้ได้ประมาณ 650,000 บาท

วงเงินกู้

0

บาท

รายได้ขั้นต่ำต่อเดือน

0

บาท

ยอดผ่อนต่อเดือน

0

บาท
logo
สร้างประกาศโดยแอปพลิเคชั่น "LivingInsider" รองรับทั้งระบบ IOS และ Android ดาวน์โหลดทันที ตอนนี้ คลิกเลย!!

Stories banner

ประกาศที่เกี่ยวข้อง

 


 


 


 


 


 


send-message แชท
Not Verified

หรือเลือกติดต่อช่องทางอื่น

M 09759 ขายที่ดินแปลงสวย วิวภูเขา ราคาดี โอกาสลงทุนหายาก 📍พิกัด : ต.เขาขลุง อ.บ้านโป่ง จ.ราชบุรี พิกัด Google Maps 👉 https://goo.gl/maps/qm3qsv4Aqht66jPg9?g_st=al รายละเอียด : ▪️ ขนาด 22 ไร่ 2 งาน 96

livinginsider livinginsider