Loading...
Loading...
Loading...

แสดงรูปทั้งหมด

ทาวน์โฮม ขาย
: 636 : 30

ขายทาวน์โฮมไซส์ XL 31 ตร.ว. พื้นที่เยอะเท่าบ้านเดี่ยว จอดรถได้ 2 คัน ทำเลใจกลางเมือง! เลขที่สวย 1817/99

฿13,750,000 (443,548 บ./ตร.ว.)
สร้างเมื่อ 2 วันที่แล้ว
ดันประกาศล่าสุดเมื่อ 21 ชั่วโมงที่แล้ว
ข้อมูลอสังหาฯ
ขนาดที่ดิน 31 ตร.ว.
พื้นที่ใช้สอย 150 ตร.ม.
จำนวนชั้น 2
ห้องนอน 4
ห้องน้ำ 2
รายละเอียด

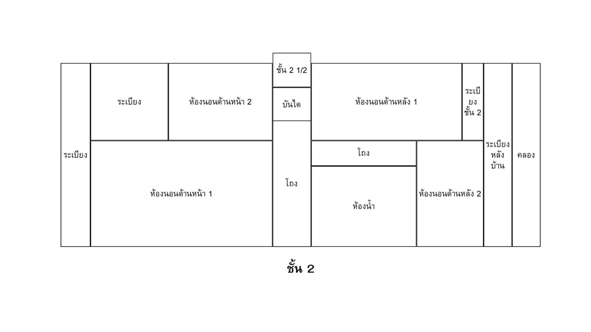
[หายาก! ทาวน์โฮมขนาดใหญ่พิเศษ 31 ตร.ว. สร้างเต็มพื้นที่ จอดรถได้ 2 คัน] ขายทาวน์โฮม 2 ชั้น หลังใหญ่ พื้นที่ใช้สอยกว้างขวางเหมือนบ้านเดี่ยว บนที่ดินขนาด 31 ตารางวา ตั้งอยู่ทำเลศักยภาพใจกลางเมือง เดินทางสะดวกสบาย เหมาะทั้งอยู่อาศัยและทำเป็นโฮมออฟฟิศ * หมายเหตุ รูปใช้ภาพจริงที่ลบเฟอร์นิเจอร์ออกเพื่อให้เห็นพื้นที่ชัดเจน ✨ จุดเด่นของบ้านหลังนี้: พื้นที่ดิน: 31 ตารางวา (ขนาดใหญ่กว่าทาวน์โฮมทั่วไปเกือบเท่าตัว) หน้ากว้างพิเศษ: ประมาณ 6.5 - 7 เมตร ทำให้บ้านโปร่งโล่ง ไม่รู้สึกอึดอัด ที่จอดรถ: จอดรถในร่มได้สบายๆ 2 คัน การออกแบบ: สร้างเต็มพื้นที่เพื่อให้ได้พื้นที่ใช้สอยภายในสูงสุด เลขที่บ้านมงคล: 1817/99 (เลขสวย อยู่แล้วรวย เป็นสิริมงคล) 🏠 ฟังก์ชันภายในบ้าน: 2 ชั้น พื้นที่ใช้สอยกว้างขวาง ห้องโถงรับแขกขนาดใหญ่ เชื่อมต่อโซนรับประทานอาหาร โซนห้องครัวแยกเป็นสัดส่วน ห้องนอนขนาดใหญ่ และห้องน้ำครบทุกชั้น 📍 ทำเลที่ตั้ง: 1. การเดินทางที่สะดวกสบาย (จุดเด่นหลัก) BRT สถานีวัดปริวาส: เดินทางเชื่อมต่อไปยัง BTS ช่องนนทรีได้ง่ายมาก (ตัวซอย 41 อยู่ใกล้กับสถานีวัดปริวาสและวัดดอกไม้) ทางด่วน: ใกล้จุดขึ้น-ลงทางด่วนเฉลิมมหานคร และทางด่วนศรีรัช ทำให้เข้า-ออกเมืองได้รวดเร็ว สะพานภูมิพล 1 และ 2: เชื่อมต่อไปยังฝั่งธนบุรี สมุทรปราการ และปู่เจ้าสมิงพราย ได้เพียงไม่กี่นาที ถนนสายหลัก: เชื่อมต่อถนนพระราม 3, ถนนสาธุประดิษฐ์, ถนนนราธิวาสราชนครินทร์ และถนนยานนาวา 2. ห้างสรรพสินค้าและไลฟ์สไตล์ เซ็นทรัล พระราม 3: ห้างใหญ่ประจำย่านที่มีครบทุกอย่าง (ห่างไปเพียงประมาณ 5-10 นาที) โลตัส พระราม 3: สำหรับซื้อของกินของใช้เข้าบ้าน Terminal 21 Rama 3: ห้างใหม่ริมน้ำสุดชิคที่มีจุดถ่ายรูปและร้านอาหารมากมาย The Up Rama 3: คอมมูนิตี้มอลล์ที่มีร้านอาหารและร้านค้าเปิดให้บริการ 24 ชั่วโมง INT Intersect: คอมมูนิตี้มอลล์เก๋ๆ บนถนนพระราม 3 3. สถานศึกษาและโรงเรียนนานาชาติ โรงเรียนสารสาสน์พิทยา / สารสาสน์เอกตรา: โรงเรียนชื่อดังในย่านสาธุประดิษฐ์ โรงเรียนพระแม่มารีสาธุประดิษฐ์ โรงเรียนนานาชาติ King's College: โรงเรียนนานาชาติระดับพรีเมียมบนถนนรัชดา-พระราม 3 โรงเรียนนานาชาติ Shrewsbury (City Campus): เดินทางไปได้สะดวกทางฝั่งถนนเจริญกรุง 💰 ราคาเพียง [13.75] ล้านบาท (ค่าโอนคนละครึ่ง) นัดชมบ้านหรือสอบถามข้อมูลเพิ่มเติม: 📞 โทร: [ คลิกเพื่อดูเบอร์โทรติดต่อ] 💬 Line ID: [tungsurpak] (ทักแชทขอดูรูปภาพเพิ่มเติมและแปลนบ้านได้ตลอด 24 ชม. ครับ)

จุดเด่นทรัพย์

เครื่องปรับอากาศ เครื่องปรับอากาศ
เครื่องทำน้ำอุ่น เครื่องทำน้ำอุ่น
ที่จอดรถส่วนตัว ที่จอดรถส่วนตัว
ใกล้สวนสาธารณะ ใกล้สวนสาธารณะ
ใกล้ห้าง ใกล้ห้าง
ใกล้ทางด่วน ใกล้ทางด่วน
ใกล้รถไฟฟ้า ใกล้รถไฟฟ้า
ใกล้ตลาด ใกล้ตลาด
ใกล้สถานศึกษา ใกล้สถานศึกษา
ใกล้โรงพยาบาล ใกล้โรงพยาบาล
ใกล้ป้ายรถเมล์ ใกล้ป้ายรถเมล์

แสดงจุดเด่นเพิ่มเติม

ที่ตั้งและทำเล

ยังไม่เจอ ทาวน์โฮม ที่ต้องการ
ให้นายหน้ามืออาชีพ ช่วยหาให้สิ ง่ายๆแค่แจ้งไลน์ไอดี
livinginsider

คำนวณสินเชื่ออสังหาฯ เบื้องต้น

ติดต่อเจ้าหน้าที่ธนาคาร
livinginsider
บาท
กรุณากรอกราคาอสังหาฯ
%
อัตราดอกเบี้ยต้องอย่างน้อย 1%
ปี
ระยะเวลากู้ไม่น้อยกว่า 3 ปี

ตัวเลขที่แสดงจะเป็นตัวเลขเฉพาะการกู้ โดยวิธีคำนวณง่ายๆ เงินเดือน 10,000 บาท จะกู้ได้ประมาณ 650,000 บาท

วงเงินกู้

0

บาท

รายได้ขั้นต่ำต่อเดือน

0

บาท

ยอดผ่อนต่อเดือน

0

บาท
logo
ใช้ LivingInsider ผ่านแอปสะดวกกว่าจริงๆนะ รองรับทั้งระบบ IOS และ Android ดาวน์โหลดทันที ตอนนี้ คลิกเลย!!

Stories banner

ประกาศที่เกี่ยวข้อง

 


 


 


 


 


 


send-message แชท
Not Verified

หรือเลือกติดต่อช่องทางอื่น

[หายาก! ทาวน์โฮมขนาดใหญ่พิเศษ 31 ตร.ว. สร้างเต็มพื้นที่ จอดรถได้ 2 คัน] ขายทาวน์โฮม 2 ชั้น หลังใหญ่ พื้นที่ใช้สอยกว้างขวางเหมือนบ้านเดี่ยว บนที่ดินขนาด 31 ตารางวา ตั้งอยู่ทำเลศักยภาพใจกลางเมือง เดินทา

livinginsider livinginsider