Loading...
Loading...
Loading...

แสดงรูปทั้งหมด

สำนักงาน ให้เช่า
: 2,769 : 151

ให้เช่า พื้นที่ออฟฟิศ ทองหล่อ (BTS ทองหล่อ 750m)

฿60,900/ด. (700 บ./ตร.ม.)
พร้อมให้เช่าในวันที่ 03 เม.ย. 2569
สร้างเมื่อ 06/03/2569
แก้ไขล่าสุดเมื่อ 2 ชั่วโมงที่แล้ว
ข้อมูลอสังหาฯ
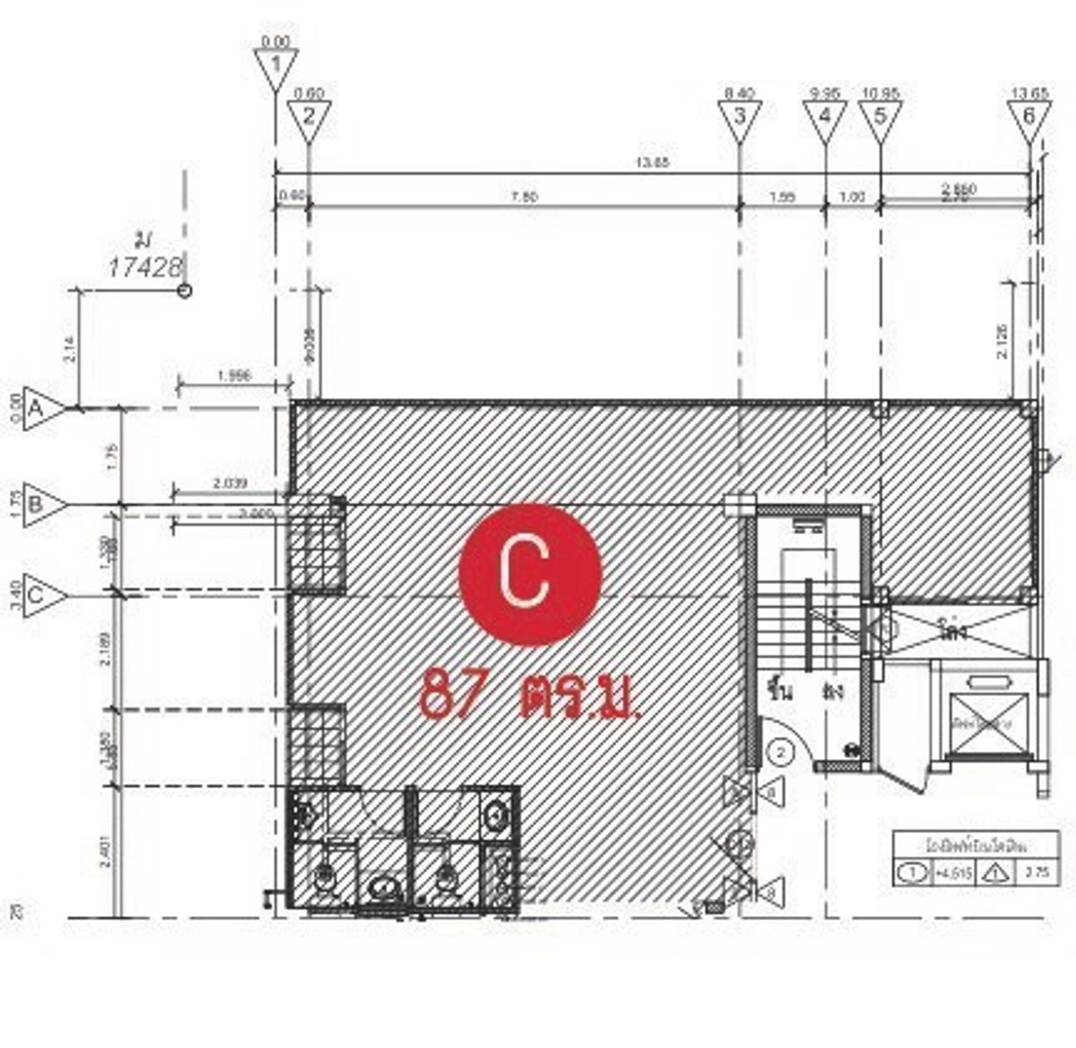
พื้นที่ใช้สอย 87 ตร.ม.
ชั้นที่ 4
ห้องน้ำ 2
รายละเอียด

ให้เช่า พื้นที่ออฟฟิศ ทองหล่อ (BTS ทองหล่อ 750m) ชั้น 4 ขนาด 87 ตรม. มีห้องน้ำแยกชาย หญิง ในตัว แอร์ 3 ตัว (ไม่มีเฟอร์นิเจอร์) ที่จอดรถ 1 คัน ราคา 60,900 บาท/ เดือน มัดจำ 3 เดือน ล่วงหน้า 1 เดือน สัญญา 3 ปี สนใจติดต่อคุณตั้ง: คลิกเพื่อดูเบอร์โทรติดต่อ Line ID: @bonamana Whatsapp: คลิกเพื่อดูเบอร์โทรติดต่อ

จุดเด่นทรัพย์

จดทะเบียนบริษัทได้ จดทะเบียนบริษัทได้
เครื่องปรับอากาศ เครื่องปรับอากาศ

แสดงจุดเด่นเพิ่มเติม

ที่ตั้งและทำเล

ยังไม่เจอ สำนักงาน ที่ต้องการ
ให้นายหน้ามืออาชีพ ช่วยหาให้สิ ง่ายๆแค่แจ้งไลน์ไอดี
livinginsider
logo
สร้างประกาศโดยแอปพลิเคชั่น "LivingInsider" รองรับทั้งระบบ IOS และ Android ดาวน์โหลดทันที ตอนนี้ คลิกเลย!!

Stories banner

ประกาศที่เกี่ยวข้อง

 


 


 


 


 


 


send-message แชท
Verified

หรือเลือกติดต่อช่องทางอื่น

ให้เช่า พื้นที่ออฟฟิศ ทองหล่อ (BTS ทองหล่อ 750m) ชั้น 4 ขนาด 87 ตรม. มีห้องน้ำแยกชาย หญิง ในตัว แอร์ 3 ตัว (ไม่มีเฟอร์นิเจอร์) ที่จอดรถ 1 คัน ราคา 60,900 บาท/ เดือน มัดจำ 3 เดือน ล่วงหน้า 1 เดือน สัญญ