Loading...
Loading...
Loading...

แสดงรูปทั้งหมด

คอนโด ให้เช่า
: 4,072 : 225
(รหัสทรัพย์ : A01)

ให้เช่าคอนโด ชาร์ปเตอร์วัน โมเดิร์นดัช ( Chapter One Modern Dutch) 2 นอน

฿18,000/ด. (304 บ./ตร.ม.)
พร้อมให้เช่าในวันที่ 06 ม.ค. 2569
สร้างเมื่อ 9 ชั่วโมงที่แล้ว
ข้อมูลอสังหาฯ
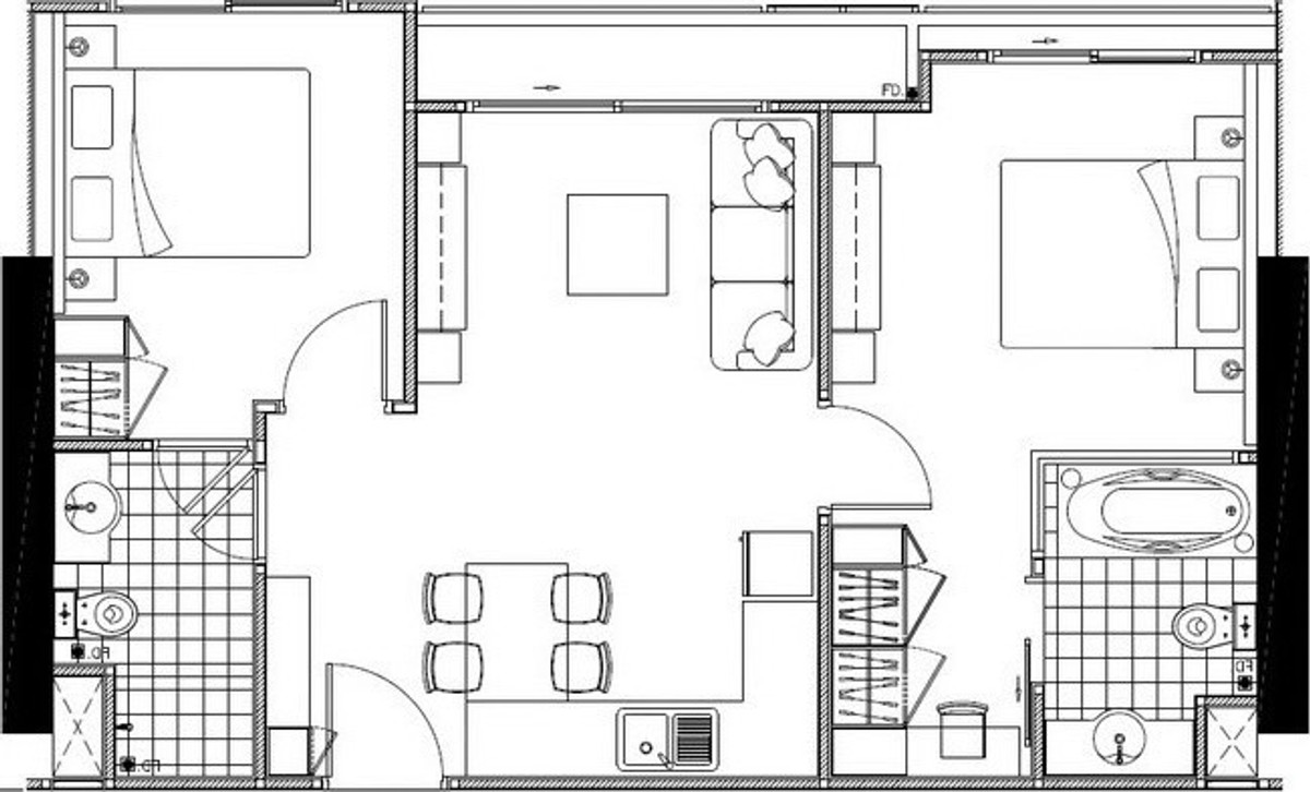
พื้นที่ใช้สอย 59.26 ตร.ม.
ชั้นที่ 9
ห้องนอน 2
ห้องน้ำ 2
รายละเอียด

ให้เช่าคอนโด ชาร์ปเตอร์วัน โมเดิร์นดัช ขนาด 2 ห้องนอน ที่ตั้ง https://maps.app.goo.gl/VjuBWZYngR3LU16p7 ห้องขนาด 59.6 ตารางเมตร นอน 2 น้ำ 2 อาคารตึก B ชั้น 9 วิวสะพานภูมิพล และวิวแม่น้ำ พื้นที่ตกแต่งบิ้วอิน เฟอร์พร้อมเข้าอยู่ พื้นที่ห้องนั่งเล่น โซฟานุ่ม นั่งสบาย พร้อมทีวีจอใหญ่ โซนพื้นที่ทำครัว เตาไฟฟ้า และอุปกรณ์เครื่องครัวครบครัน พร้อมตู้เย็น และไมโครเวฟ นอนเล็ก เตียงขนาด 3.5 ฟุต พร้อมตู้เสื้อผ้า ห้องน้ำใช้ร่วมกับพื้นที่ห้องนั่งเล่น นอนใหญ่ เตียงขนาด 6 ฟุต พร้อมตู้เสื้อผ้าและห้องน้ำในตัว พื้นที่ซักล้าง มีเครื่องซักผ้าฝาหน้าในห้อง แต่หากไม่สะดวกซักเอง ด้านล่างคอนโด มีร้านซักอบรีด และเครื่องซักผ้าหยอดเหรียญ หลายร้าน พร้อมให้บริการ สิ่งอำนวยความสะดวก ร้านซักอบรีด ร้านทำผม นวดหน้า นวดตัว สปา ร้านอาหารหลายร้าน ทั้งไทย ฝรั่ง และมีดิลิเวอรี่ด้วย ร้านจัดส่งพัสดุ ร้านเครื่องดื่ม และ 7-11 บริการรถตู้รับส่ง ที่จากคอนโด ไปสถานีบีทีเอส ห้องฟิสเนส ห้องสตรีม ห้องสมุด และห้องประชุมให้บริการ 2 ห้อง สระว่ายน้ำ 2 สระทั้ง สระใหญ่ และ สระเด็ก ห้องอเนกประสงค์ ให้เช่า 18,000 บาทต่อเดือน สำหรับสัญญาเช่า 1 ปี ขึ้นไป ค่าน้ำ 22 บาทต่อหน่วย เรทตามคอนโด ค่าไฟ 6 บาทต่อหน่วย สนใจติดต่อ คุณแนน เบอร์ คลิกเพื่อดูเบอร์โทรติดต่อ Lineid : nannie24

จุดเด่นทรัพย์

เครื่องครัว เครื่องครัว
อ่างอาบน้ำ อ่างอาบน้ำ
เตียงนอน เตียงนอน
ทีวี ทีวี
ตู้เย็น ตู้เย็น
เครื่องซักผ้า เครื่องซักผ้า
เครื่องปรับอากาศ เครื่องปรับอากาศ
เครื่องทำน้ำอุ่น เครื่องทำน้ำอุ่น
วิวแม่น้ำ วิวแม่น้ำ
ระบบรักษาความปลอดภัย
ที่จอดรถ
ฟิตเนส / ยิม
สระว่ายน้ำ
สวนขนาดย่อม

แสดงจุดเด่นเพิ่มเติม

ที่ตั้งและทำเล

ข้อมูลเกี่ยวกับโครงการ แชปเตอร์วัน โมเดิร์นดัชต์ ราษฎร์บูรณะ 33 Chapter One Modern Dutch Ratburana 33...อ่านเพิ่มเติม
สถานที่ใกล้เคียงอื่นๆ
ยังไม่เจอ แชปเตอร์วัน โมเดิร์นดัชต์ ราษฎร์บูรณะ 33 ที่ต้องการ
ให้นายหน้ามืออาชีพ ช่วยหาให้สิ ง่ายๆแค่แจ้งไลน์ไอดี
livinginsider
logo
ใช้ LivingInsider ผ่านแอปสะดวกกว่าจริงๆนะ รองรับทั้งระบบ IOS และ Android ดาวน์โหลดทันที ตอนนี้ คลิกเลย!!

Stories banner

send-message แชท
Verified

หรือเลือกติดต่อช่องทางอื่น

ให้เช่าคอนโด ชาร์ปเตอร์วัน โมเดิร์นดัช ขนาด 2 ห้องนอน ที่ตั้ง https://maps.app.goo.gl/VjuBWZYngR3LU16p7 ห้องขนาด 59.6 ตารางเมตร นอน 2 น้ำ 2 อาคารตึก B ชั้น 9 วิวสะพานภูมิพล และวิวแม่น้ำ พื้นที่ตกแต่งบ

livinginsider livinginsider