Loading...
Loading...
Loading...

แสดงรูปทั้งหมด

ทาวน์โฮม ขาย
: 1,408 : 93
(รหัสทรัพย์ : 11901701)

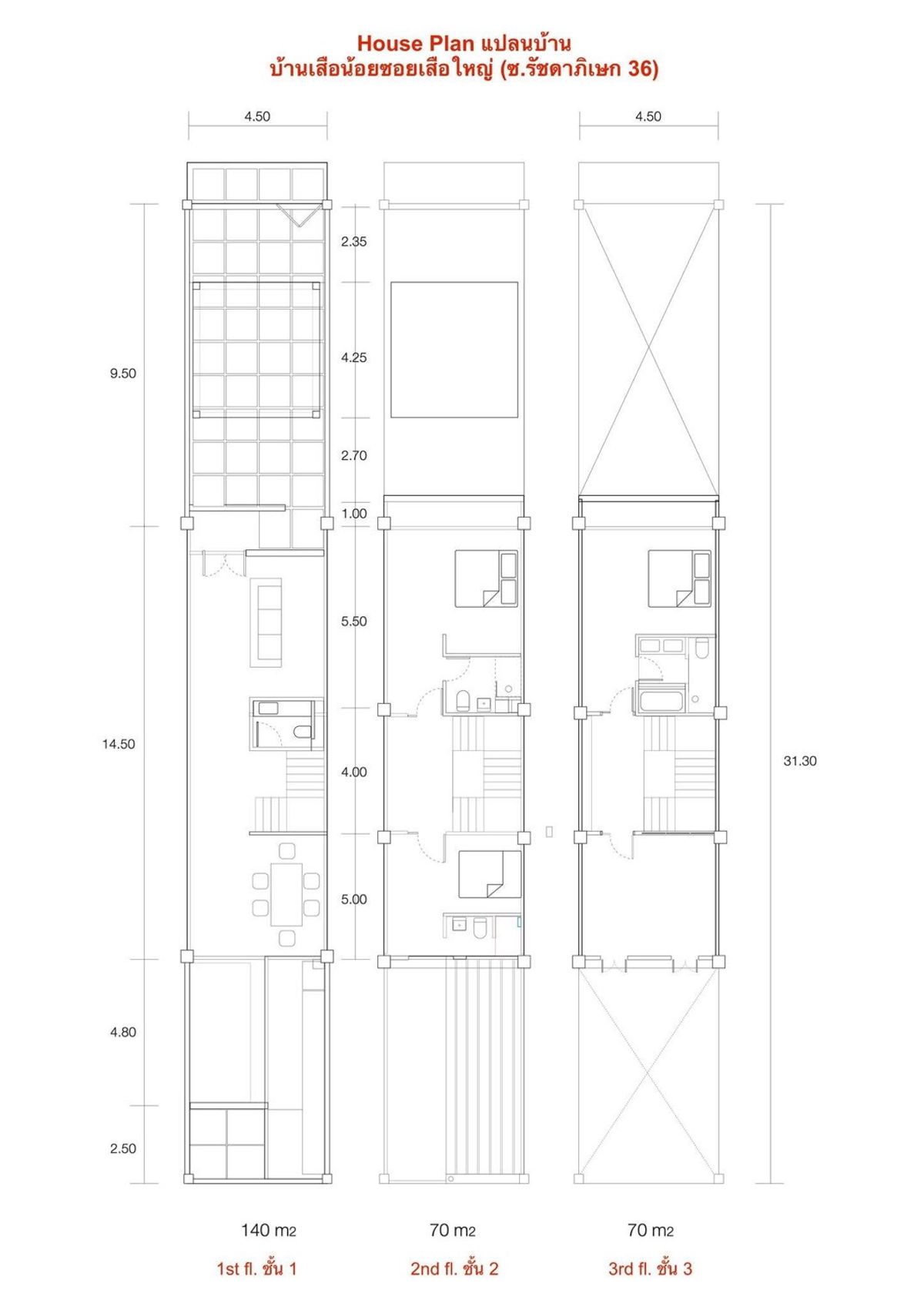
♦ Newly Renovated ♦ ทาวน์โฮม 3 ชั้น | ขนาดที่ดิน 37.00 ตร.ว. พื้นที่ใช้สอย 280.00 ตร.ม. | 4 ห้องนอน 4 ห้องน้ำ 2 ที่จอดรถ | ใกล้ BTS รัชโยธิน, MRT ลาดพร้าว

฿10,800,000 (291,892 บ./ตร.ว.)
สร้างเมื่อ 26/05/2568
เพิ่มอายุเมื่อ 2026-01-14 09:52
ข้อมูลอสังหาฯ
ขนาดที่ดิน 37 ตร.ว.
พื้นที่ใช้สอย 280 ตร.ม.
จำนวนชั้น 3
ห้องนอน 4
ห้องน้ำ 4
รายละเอียด

N0139 Project Name: 3-storey townhouse (ทาวน์โฮม 3 ชั้น) Location: รัชดา 36 ซอยเสือใหญ่ ใกล้ BTS พหลโยธิน, MRT ลาดพร้าว, เซนทรัลลาดพร้าว, สวนจตุจักร, โลตัส วังหิน, แมคโคร HOUSE DETAIL ขนาดที่ดิน: 37.00 sq.w. พื้นที่ใช้สอย: 280.00 sq.m. ห้องนอน: 4 Bedrooms ห้องน้ำ: 4 Bathrooms 1 ห้องนั่งเล่น 1 ห้องทานข้าว 1 ห้องครัว ชั้น: 3 Storey ที่จอดรถ: 2 Parking การตกแต่ง: เฟอร์นิเจอร์ครบ Fully Furnished ราคาขาย: 10,800,000 THB Pocket garden, Pet-friendly ** มีอีกหลายยูนิตอื่นให้เลือก ** ** Many other units to choose ** --------------------------------------------------------------------------------------------------------------- FOR PROPERTY VIEWING AND FURTHER INFORMATION PLEASE CONTACT Mobile & Whatsapp: +66 (0)994 565 46 five / (0) 99 456 546 ห้า E-mail: sukritmns(at sign)gmail.com Line(have sign @): @cproperty Website: clickproperty.co.th 🗝️เรามีทีมงานซัพพอตลูกค้า 24 ชม. 🗝️เรารับจัดหาบ้านและคอนโดตามที่ลูกค้าต้องการ ** ฟรี ** 🗝️เรารับเคลียร์และต่อรองให้ลูกค้าได้ประโยชน์และคุ้มค่าที่สุด 🗝️การันตีลูกค้าที่เราดูแลมาแล้ว 1,000 กว่าเคส

จุดเด่นทรัพย์

เครื่องครัว เครื่องครัว
เตียงนอน เตียงนอน
ทีวี ทีวี
ตู้เย็น ตู้เย็น
เครื่องซักผ้า เครื่องซักผ้า
เครื่องปรับอากาศ เครื่องปรับอากาศ
เครื่องทำน้ำอุ่น เครื่องทำน้ำอุ่น
ที่จอดรถส่วนตัว ที่จอดรถส่วนตัว
สวนขนาดย่อม สวนขนาดย่อม

แสดงจุดเด่นเพิ่มเติม

ที่ตั้งและทำเล

ยังไม่เจอ ทาวน์โฮม ที่ต้องการ
ให้นายหน้ามืออาชีพ ช่วยหาให้สิ ง่ายๆแค่แจ้งไลน์ไอดี
livinginsider

คำนวณสินเชื่ออสังหาฯ เบื้องต้น

ติดต่อเจ้าหน้าที่ธนาคาร
livinginsider
บาท
กรุณากรอกราคาอสังหาฯ
%
อัตราดอกเบี้ยต้องอย่างน้อย 1%
ปี
ระยะเวลากู้ไม่น้อยกว่า 3 ปี

ตัวเลขที่แสดงจะเป็นตัวเลขเฉพาะการกู้ โดยวิธีคำนวณง่ายๆ เงินเดือน 10,000 บาท จะกู้ได้ประมาณ 650,000 บาท

วงเงินกู้

0

บาท

รายได้ขั้นต่ำต่อเดือน

0

บาท

ยอดผ่อนต่อเดือน

0

บาท
logo
ใช้ LivingInsider ผ่านแอปสะดวกกว่าจริงๆนะ รองรับทั้งระบบ IOS และ Android ดาวน์โหลดทันที ตอนนี้ คลิกเลย!!

ประกาศอื่นของ Click Property

ประกาศที่เกี่ยวข้อง

 


 


 


 


 


 


send-message แชท
Verified

หรือเลือกติดต่อช่องทางอื่น

N0139 Project Name: 3-storey townhouse (ทาวน์โฮม 3 ชั้น) Location: รัชดา 36 ซอยเสือใหญ่ ใกล้ BTS พหลโยธิน, MRT ลาดพร้าว, เซนทรัลลาดพร้าว, สวนจตุจักร, โลตัส วังหิน, แมคโคร HOUSE DETAIL ขนาดที่ดิน: 37.0

livinginsider livinginsider