Loading...
Loading...
Loading...

แสดงรูปทั้งหมด

โรงงาน ให้เช่า
: 1,544 : 71
(รหัสทรัพย์ : HR3236)

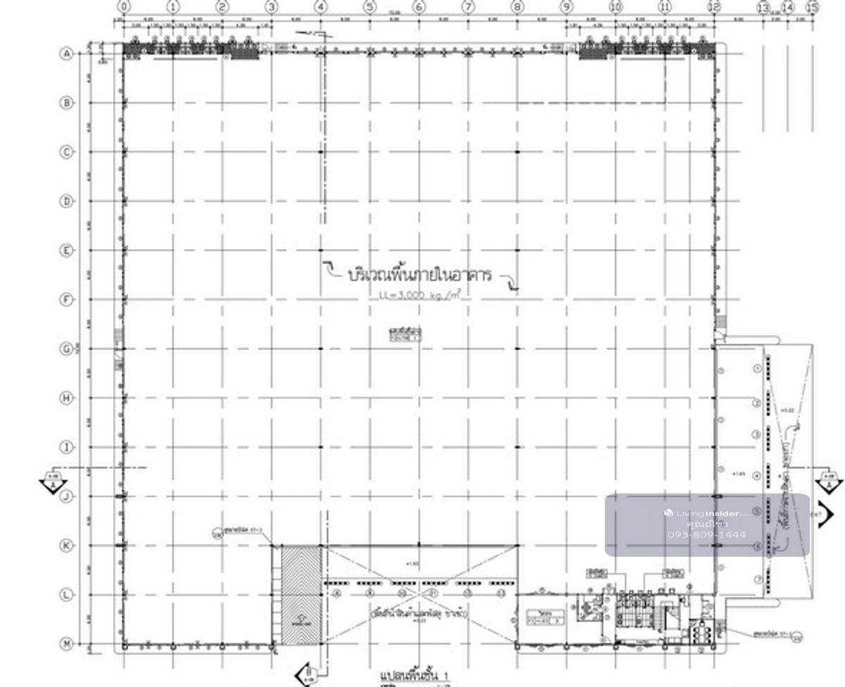
HR3236ให้เช่าโกดัง/โรงงาน พื้นที่สีม่วง (Purple Zone) บางนา-ตราด กม.23 สเปคสูง รองรับอุตสาหกรรมและโลจิสติกส์เต็มรูปแบบ

฿743,580/ด. (275 บ./ตร.ว.)
พร้อมให้เช่าในวันที่ 24 ก.พ. 2569
สร้างเมื่อ 24/02/2569
ดันประกาศล่าสุดเมื่อ 17/03/2569
ข้อมูลอสังหาฯ
ขนาดที่ดิน 6 ไร่ 3 งาน 7 ตร.ว.
พื้นที่ใช้สอย 5,500 ตร.ม.
รายละเอียด

HR3236ให้เช่าโกดัง/โรงงาน พื้นที่สีม่วง (Purple Zone) บางนา-ตราด กม.23 สเปคสูง รองรับอุตสาหกรรมและโลจิสติกส์เต็มรูปแบบ รหัสประกาศ HR3236 อัตราค่าเช่า: 135 - 150 บาท / ตร.ม. การวางเงิน: มัดจำ 3 เดือน + ล่วงหน้า 1 เดือน สัญญา: ขั้นต่ำ 3 ปี สถานะ: พร้อมให้เข้าใช้งาน 1 มีนาคม 2569 ติดต่อคุณณิชา คลิกเพื่อดูเบอร์โทรติดต่อ , คลิกเพื่อดูเบอร์โทรติดต่อ ID Line : henghengpaula WeChat ID : paula2527 ให้เช่า] โกดัง/โรงงาน พื้นที่สีม่วง (Purple Zone) บางนา-ตราด กม.23 สเปคสูง รองรับอุตสาหกรรมและโลจิสติกส์เต็มรูปแบบ 📍 ทำเลศักยภาพ • ที่ตั้ง: ซอยวัดบัวโรจน์ ถ.บางนา-ตราด กม.23 (ขาออก) • พื้นที่: ผังเมือง สีม่วง (สามารถขอใบอนุญาตประกอบกิจการโรงงาน รง.4 ได้) • เนื้อที่ดิน: 6 ไร่ 3 งาน 71.5 ตร.ว. 📐 รายละเอียดพื้นที่อาคาร (รวม 5,508 ตร.ม.) • พื้นที่คลังสินค้า/โรงงาน: 5,220 ตร.ม. • พื้นที่สำนักงาน (Office): 288 ตร.ม. (2 ชั้น ชั้นละ 144 ตร.ม.) • ความสูงเพดาน: 12 เมตร (Clear Height) โปร่งสบาย จัดเก็บสินค้าได้เยอะ • การรับน้ำหนัก: พื้นรับน้ำหนักได้ 3 ตัน / ตร.ม. 🚛 ระบบขนถ่ายสินค้า (Loading Docks) • ตู้คอนเทนเนอร์ 40 FT: 4 Docks (พื้นยกสูง 1.50 เมตร) • รถกระบะ/รถบรรทุกเล็ก: 7 Docks • พื้นที่จอดรถและกลับรถกว้างขวาง สะดวกต่อการกระจายสินค้า ที่ตั้ง ถนนบางนา-ตราด กม. 23 (ฝั่งขาออก) ตำบลบางเสาธง อำเภอบางเสาธง จังหวัดสมุทรปราการ 10570

จุดเด่นทรัพย์

ใกล้ทางด่วน ใกล้ทางด่วน
ใกล้โรงพยาบาล ใกล้โรงพยาบาล
ใกล้สนามบิน ใกล้สนามบิน
ใกล้ป้ายรถเมล์ ใกล้ป้ายรถเมล์

แสดงจุดเด่นเพิ่มเติม

ที่ตั้งและทำเล

ยังไม่เจอ โรงงาน ที่ต้องการ
ให้นายหน้ามืออาชีพ ช่วยหาให้สิ ง่ายๆแค่แจ้งไลน์ไอดี
livinginsider
logo
ใช้ LivingInsider ผ่านแอปสะดวกกว่าจริงๆนะ รองรับทั้งระบบ IOS และ Android ดาวน์โหลดทันที ตอนนี้ คลิกเลย!!

ประกาศที่เกี่ยวข้อง

 


 


 


 


 


 


send-message แชท
Verified

หรือเลือกติดต่อช่องทางอื่น

HR3236ให้เช่าโกดัง/โรงงาน พื้นที่สีม่วง (Purple Zone) บางนา-ตราด กม.23 สเปคสูง รองรับอุตสาหกรรมและโลจิสติกส์เต็มรูปแบบ รหัสประกาศ HR3236 อัตราค่าเช่า: 135 - 150 บาท / ตร.ม. การวางเงิน: มัดจำ 3 เดือน +