หน้าแรก
ห้องประกาศ ขาย เช่า CHALERMNIT ART DE MAISON ดูที่นี่..
ถ้าพูดถึง “Premium Japanese Town in Bangkok” ทุกคนจะรู้กันว่าเราพูดถึงที่ไหน ทุกคนในที่นี้ไม่ได้หมายถึงแต่เฉพาะคนไทยนะครับ ชาวต่างชาติก็เหมือนกัน ถ้าไปถาม Expats ทุกคนในประเทศไทย ผมเชื่อว่าไม่มีใครไม่รู้จัก “ทองหล่อ” เพราะเป็นย่าน Japanese Lifestyle อันดับ 1 ของเมืองไทย ที่หรูหราและมีสิ่งอำนวยความสะดวกในแบบฉบับของคนญี่ปุ่นครบครัน
ความร้อนแรงของ 'ทองหล่อ' ดึงดูดเหล่า Developer อสังหาฯ ลงทุนเปิดโครงการตอบรับความต้องการของนักลงทุน - ชาวต่างชาติ โดยเฉพาะ 'ญี่ปุ่น' หลายคนเข้ามาทำธุรกิจ / ทำงานระดับบริหาร หรือเกษียณอายุในบ้านเรา หากมีฐานะดี
ไม่ใช่แค่คนญี่ปุ่นเท่านั้น คนไทยกลุ่ม Premium segment เองก็ชื่นชอบ Life style แถวนี้ ถ้าไปร้านอาหารหรือ Community Mall แถวทองหล่อจะสังเกตเห็นได้ว่า คนไทยรุ่นใหม่จำนวนไม่น้อยก็ชอบใช้ชีวิตอยู่บริเวณนี้
ถ้าเราได้ติดตามข่าวจะเห็นว่าช่วงนี้มีกระแส Japanese Minimalist เรียบง่ายแต่ครบครันและหรูหรา กำลังเป็นที่นิยมอย่างมากทั่วโลก เรื่องนี้ไม่ได้เกิดขึ้นโดยบังเอิญนแต่เป็น Century Global Trend อย่างหนึ่งที่เรียกกันว่า “Global Paradox”
Global Paradox?
เคยสังเกตไหมครับว่าคนเราเมื่ออยู่กับอะไรสักอย่างมากๆ เป็นเวลานานๆ แล้ว เราจะไขว่คว้ามองหาอะไรที่ตรงกันข้ามกันอยู่เสมอ ชีวิตคนเมืองมีสิ่งอำนวยความสะดวกครับครันแต่ Luxury Hotel มักไปสร้างอยู่นอกเมือง
คนไทยชอบหนาวคนฝรั่งนอนอาบแดด ผู้หญิงตัวเล็กมองหาแฟนตัวสูง โลกก้าวหน้าไปไกลแต่ทุกครั้งที่มี Concert ยุค 90 บัตรเต็มทุกรอบ โลกหมุนไปไวมากแต่ทุกคนกลับอยากได้ชีวิต Slow Life ทั้งหมดที่ว่ามานี่ล่ะครับคือ “Global Paradox”
ในขณะที่เราพูดเสมอว่าอยากได้ชีวิตที่ง่ายๆ สบายๆ ในเวลาเดียวกันเราก็มองหาความสมบูรณ์แบบ คนสมัยนี้เกิดมาพร้อมกับความ ”ครบ” นะครับ เทคโนโลยีทำให้เรามีทุกอย่าง ทั้งอาหารที่เพียงพอ (มนุษย์เพิ่งจะมีอาหารกินเกินพอเมื่อไม่นานมานี้เอง) การใช้ชีวิตที่สะดวกสบาย ตอบโจทย์ทุกความต้องการ หลายครั้ง ใจลึกๆ เรามักจะบอกอยู่เสมอว่า…
“จะดีแค่ไหนถ้าชีวิตได้ทุกอย่าง ไม่ต้องเลือกสิ่งใดสิ่งนึง แล้วเสียสละบางอย่างไป” เป็นคำพูดที่ คุณวิศิษฎ์ เลาหพูนรังษี ประธานกรรมการและกรรมการผู้จัดการ บริษัท อารียา พรอพเพอร์ตี้ มักพูดอยู่เสมอ

การใช้ชีวิตที่ครบครัน หรูหรา แต่เรียบง่ายและแวดล้อมด้วยธรรมชาติที่เงียบสงบ บนโลกที่กำลังหมุนไปอย่างรวดเร็วจนเดินตามไม่ทัน ต้องวิ่งตามเท่านั้น ในแบบฉบับของชาวญี่ปุ่น เลยกลายเป็นที่นิยมของคนทั่วโลกในเวลาอันรวดเร็วอย่างไม่ต้องสงสัย เพราะมันตอบโจทย์ความต้องการลึกๆ ของคนสมัยนี้ได้อย่างแยบยลจริงๆ
การเป็นที่นิยมของทั้งชาวต่างชาติและชาวไทย ทั้งคนรุ่นเก่าและรุ่นใหม่ แถมยังได้รับแรงผลักดันจาก Century Global Trend นี่ล่ะครับ เป็นตัวยืนยันความเจริญอย่างยั่งยืนของย่านทองหล่อในอนาคต “ผมมั่นใจว่าทองหล่อจะเจริญยิ่งขึ้นไปอีกเรื่อยๆ หลายๆ สิบปี หรืออาจจะเป็นร้อยปี ความเจริญที่เราเห็นว่าเยอะแล้วในวันนี้ ยังเป็นแค่จุดเริ่มต้นครับ”

เราจะเป็นส่วนหนึ่งของจุดเริ่มต้นที่ยิ่งใหญ่นี้ได้ยังไงบ้าง?
“เป็นเจ้าของมันซะเลย” ผมเชื่อแบบนั้นจริงๆ และแน่นอนว่ามีคนไม่น้อยที่เชื่อแบบผม เห็นได้จากที่ใครๆ ก็อยากมีคอนโดอยู่ในทองหล่อ เพื่อนคนไหนที่บอกว่าบ้านตัวเองอยู่ที่ทองหล่อผมสังเกตเกตเห็นได้ถึงรอยยิ้มที่มุมปากและความภูมิใจในแววตาของคนพูด
ราคาอสังหาริมทรัพย์เองก็สูงขึ้นกว่าแต่ก่อนมาก แต่อย่างที่บอกครับราคาที่เราเห็นตอนนี้ที่คิดว่าสูงแล้ว ยังเป็นแค่จุดเริ่มต้นครับ แค่ทุกวันนี้ก็เห็นคอนโดตารางเมตรละ 4-5 แสนเป็นเรื่องปกติไปแล้วในทำเลทองหล่อ ในอนาคตรอเห็นคอนโดตารางเมตรละล้านได้เลยครับ

ถ้าคุณถามผมว่า…ซื้อคอนโดทองหล่อจังหวะไหนดี? ผมจะบอกคุณว่า…“วันนี้” นี่ล่ะครับดีที่สุด เวลายิ่งผ่าน ยิ่งเสียโอกาส
ในฐานะคนที่ชอบคอนโดเป็นชีวิตจิตใจ ทองหล่อเป็นทำเลที่ผมจะไม่พลาด ล่าสุดผมได้ข่าวเกี่ยวกับการมาของคอนโดใหม่ ที่เป็นรูปแบบ “The Novel Perspectives of Luxurious Japanese-inspired Residence” เพิ่งเปิดตัวโดยบริษัทชั้นนำของประเทศอย่าง Areeya Property น่าสนใจมากๆ ผมเลยอยากรีบเอาข้อมูลมาฝากครับ
CHALERMNIT | ART DE MAISON

สำหรับที่มาของชื่อ ‘Chalermnit’ นั้นมาจากการที่ ดร.สุเมธ ชุมสาย ณ อยุธยา ซึ่งเป็นบุตรของนายเฉลิมขวัญ ชุมสาย ณ อยุธยา กับ หม่อมหลวงมานิจ ชุมสาย ได้ทำการส่งต่อพื้นที่ให้ทาง Areeya นำมาพัฒนาโครงการต่อ จึงได้นำชื่อของทั้งบิดาและมารดาของท่านรวมกันมาเป็นชื่อโครงการฯ ‘เฉลิมนิจ’ ตามท้ายด้วย ART DE MAISON ที่แปลว่าที่อยู่ของศิลปิน จึงเป็นที่มาของชื่อโครงการนี้ว่า CHALERMNIT ART DE MAISON
นี่เป็นโครงการที่คุณวิศิษฎ์ เลาหพูนรังษี ประธานกรรมการและกรรมการผู้จัดการ บริษัท อารียา พรอพเพอร์ตี้ ทุ่มเทอย่างมากในทุกๆ ขั้นตอน เริ่มตั้งแต่การศึกษาไลฟ์สไตล์ของ Target group รวมไปถึงการตระเวณไปตามที่ต่างๆ ทั่วทุกมุมโลก เพื่อสะสมแรงบันดาลใจ และนวัตกรรม ที่ดีที่สุดจากที่ต่างๆ นำมาต่อยอดในโปรเจ็คท์ จนกระทั่งตกผลึกออกมาเป็น Chalermnit Art de Masion
โครงการนี้ได้แนวคิดมาจากจิตวิญญาณแห่งการใช้ชีวิต อันละเมียดละไมของชาวญี่ปุ่นที่เปี่ยมด้วยศาสตร์และศิลป์อย่างแท้จริงโดยนำมาตีความ และสร้างสรรค์เป็นสถาปัตยกรรมสไตล์โมเดิร์นที่เรียบง่าย เติมเต็มจิตวิญญาณของคุณ ซึ่งคอนเซปต์ดังกล่าวยังได้นำมาสื่อสารผ่านงานศิลปะร่วมสมัยโดยคุณ CONAMI HARA ศิลปินชื่อดังของญี่ปุ่นเพื่อเฉลิมฉลองการเปิดตัวของโครงการอีกด้วย
นอกจากความน่าสนใจในเชิงคอนเซปต์ และสถาปัตยกรรมที่หรูหราแบบ Minimalist ตามแบบฉบับญี่ปุ่นแล้ว Chalermnit Art de Maison ยังเป็นโครงการที่มีการร่วมมือกับบริษัท Design & Construction ชั้นนำของประเทศญี่ปุ่นอีกด้วย จึงมั่นใจได้ว่าทุกตารางนิ้ว สร้างสรรค์ขึ้นอย่างประณีตและพิถีพิถันที่สุด ทั้งในแง่ของดีไซน์ที่รวบรวมเอาวัสดุคุณภาพสูง มาใช้ในทุกๆ องค์ประกอบ ในแบบฉบับของชาวญี่ปุ่นจริงๆ
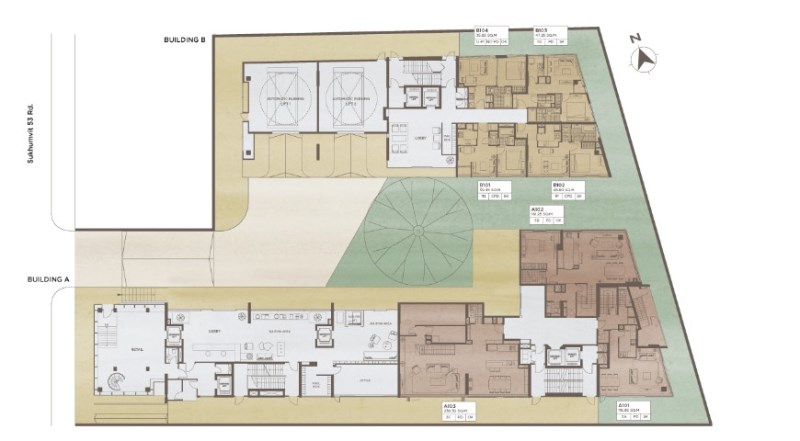
บนที่ดินขนาด 1 ไร่เศษ กลางซอยสุขุมวิท 53 เป็นที่ตั้งของคอนโดฯ ระดับ Super-Luxury จาก Areeya Property กับ CHALERMNIT | ART DE MAISON นำเสนอการออกแบบสไตล์ Luxurious Modern Japanese ผสมผสานแนวคิดแบบตะวันออก - ตะวันตก คงความเรียบง่าย อ่อนโยน แต่หรูหราอย่างยิ่ง เป็นส่วนตัวด้วยจำนวนยูนิตเพียง 122 ยูนิต แต่มีที่จอดรถถึง 128 คัน เรียกได้ว่า Supercar Park space เกิน 100% เลยทีเดียว จากจำนวนห้องที่ไม่เยอะจนเกินไป สามารถมั่นใจได้เลยว่าคอนโดนี้จะเป็นส่วนตัวและ Exclusive แบบสุดๆ

โครงการตั้งอยู่ในทำเลที่เรียกได้ว่าเป็น Golden edge ของทองหล่อ สะดวกสบาย ใกล้ทุกที่ตอบโจทย์ทุก Life Style ไม่ว่าจะเป็น Supermarket แหล่ง Shopping ระดับโลก สถาบันการศึกษา และโรงพยาบาลชั้นนำหลายแห่ง อีกทั้งยังให้คุณเชื่อมต่อ กับทุกเส้นทางได้ง่าย ๆ
พื้นที่โครงการสามารถเข้า-ออกได้ 4 ทางคือ ซอยทองหล่อ 1-5-9 และ ถนนสุขุมวิท (ตามภาพ) เทียบกับฝั่งทองหล่อ ตรงนี้พลุกพล่านน้อยกว่าครับ แวดล้อมด้วยบ้านเรือน 1-2 ชั้น, คอนโดฯ - อพาร์ทเมนท์ 8 ชั้น ห่างจาก BTS ทองหล่อ ประมาณ 550 เมตร ระยะพอเดินได้ แม้ว่าจะเป็นทำเลศักยภาพใจกลางเมืองแต่ในขณะเดียวกันก็ยังรักษาความเป็นตัวให้คุณได้อย่างสมดุลอีกด้วย

สำนักงานขายอยู่หน้าโครงการครับ ณ วันที่ลงพื้นที่ ยังไม่เปิดให้เข้าชมห้องตัวอย่าง ส่วนงานก่อสร้างกำลังดำเนินตามปกติ

ซอยสุขุมวิท 53 (ไปดีมาดี) เป็นถนน 2 เลนสวนกันสบาย


รอบโครงการมีร้านอาหารอร่อยๆ หลายร้านทีเดียว เช่น Bacca, Baan Khanitham, Arroz, Imoya, อาหารฝ้าย ฯลฯ ข้าวขาหมูก็มีนะครับ




เยื้องโครงการคือ The Alcove@53 ด้านหน้าเป็นร้าน Japanese Cafe AN คาเฟ่ชาต้นตำรับจากญี่ปุ่น

เดินไปอีกนิดคือ Chongdam Hair Design ร้านซาลอนจากเกาหลี และ Artifact Fine Living สตูดิโอดีไซน์-โชว์รูมเฟอร์นิเจอร์ อย่างไรก็ดี รอบโครงการไม่มีร้านสะดวกซื้อครับ หาของกินยามดึกยากหน่อย


มาดูรายละเอียดโครงการกันบ้างครับ ตัวอาคารเป็นแนวยาวโดยอาคาร A ติดกับถนนทองหล่อ ทางเข้าเป็นพื้นที่เปิดกว้าง มีพื้นที่สีเขียวปลูกต้นไม้ใหญ่อยู่ตรงกลางโครงการเพื่อความร่มรื่นตามแบบฉบับของชาวญี่ปุ่น ถ้าคุณเป็นแฟนหนังหรืออานิเมะญี่ปุ่น คงจะเคยสังเกตเห็นว่าจะมีต้นไม้ใหญ่อยู่กลางพื้นที่สีเขียวอยู่เสมอ

ขนาดห้องเน้นไปที่ห้องขนาดใหญ่ตอบโจทย์ความต้องการของ Super Luxury Segment มีให้เลือกตั้งแต่ 1 Bedroom 34-55 ตารางเมตร 2 Bedroom 83-104 ตารางเมตร รวมไปถึงห้อง Duplex ขนาด 117-162 ตารางเมตร โครงการเริ่มก่อสร้างแล้วในปีนี้และจะแล้วเสร็จในปี 2563 ครับ

พื้นที่ส่วนกลางของ CHALERMNIT | ART DE MAISON ประหนึ่งยกรีสอร์ทตากอากาศมาเลยครับ แวดล้อมด้วยพื้นที่สีเขียว Courtyard Garden มุมสงบผ่อนคลาย บรรเทาความเหน็ดเหนื่อย
การออกแบบที่ใช้การปลูกต้นไม้ขนาดใหญ่ สลับกับกำแพงต้นไม้ หินสีอ่อน โดยรอบโครงการ สอดคล้องกับสีน้ำตาลของอาคาร ซึ่งจะทำให้ผู้อยู่อาศัยมีความรู้สึกสบาย อยู่ใกล้ชิดธรรมชาติ ได้อย่างกลมกลืน จนลืมไปว่านี่คือคอนโดฯใจกลางเมืองกรุงเทพฯ

เป็นบ้านที่เรียกได้ว่าบ้านของเราจริงๆ เป็นบ้านที่เรียกได้ว่าเป็นพื้นที่ส่วนตัวจริงๆ มีทั้งธรรมชาติ ความเรียบง่าย และความหรูหราที่ผสมกันอย่างกลมกลืน อยู่ในพื้นที่เดียวกันได้อย่างลงตัว นี่ล่ะครับคือคำตอบของโจทย์ความต้องการที่ว่า “จะดีแค่ไหนถ้าชีวิตได้ทุกอย่างไม่ต้องเลือกสิ่งใดสิ่งหนึ่ง แล้วเสียสละบางอย่างไป”
Facility ที่ทางโครงการจัดไว้ให้ต้องเรียกได้ว่าครบครันระดับ World Class ไม่ว่าจะเป็น Extravagance Lobby Space, Holistic Wellness Fitness, Yoga space, Cardio suite, Supercar parking space, Japanese-inspired indoor swimming และที่สำคัญยังมีจุดเด่นที่หาได้ยากในคอนโดอื่นอย่าง Swing sensation-Golf Simulator และ Japanese Onsen อีกด้วย
พื้นที่ Lobby กว้างขวาง ออกแบบใช้รูปทรงเรขาคณิต ผสมผสานวัสดุไม้ - หินอ่อนอย่างลงตัว

สระว่ายน้ำในร่ม Indoor Swimming Pool สามารถออกกำลังกายได้ตลอดเวลา พร้อมบ่อแช่ออนเซ็น (Onsen) แยกชาย - หญิง สำหรับคนญี่ปุ่นต้องมีบ่อออนเซ็นครับ แช่กายสบายตัวสุดๆ


พื้นที่ Yoga Space - Cardio Suite และ Golf Simulation ออกรอบแบบเสมือนจริง


ที่จอดรถเป็นแบบ Automatic Parking ทั้งหมดครับ 128 คัน คิดเป็น 105% ของจำนวนยูนิตทั้งหมด

นอกจากนี้โครงการยังมี Personal Butler ให้บริการลูกบ้าน พร้อมระบบความปลอดภัยครบวงจร ตั้งแต่ CCTV, เจ้าหน้าที่รักษาความปลอดภัย และระบบ Video Call System คัดกรองผู้มาติดต่อลูกบ้านอีกด้วย แม้เป็นโครงการ Low-Rise บนพื้นที่ไร่เดียว แต่ส่วนกลางจัดเต็มได้ขนาดนี้ สุดยอดครับ
ภายในตัวห้องทุกห้องกว้างขวางและตกแต่งแนว Minimalist ใช้วัสดุคุณภาพ ที่เน้นพื้นไม้อย่างหนาและวัสดุธรรมชาติ แซมด้วยกระจกบานเต็มเพื่อเพิ่มความโปร่งตามแบบฉบับคนญี่ปุ่น
One bedroom suite

Duplex Suite

Who 'CHALERMNIT ART DE MAISON' Born for?
สำหรับคนที่กำลังมองหาคอนโดเพื่ออยู่อาศัยเองบริเวณสุขุมวิท-ทองหล่อ และอยากใช้ชีวิตอยู่บนทำเลที่คุณจะไม่สามารถเป็นเจ้าของได้อีกแล้วในอนาคต รักความเงียบสงบ เรียบง่าย แต่ยังมีสิ่งอำนวยความสะดวกครบและอยู่กลางเมืองแบบ Japanese-Inspired Luxury ถ้าคุณกำลังมองหาความแตกต่างที่มาผสมกันอย่างลงตัวแบบนี้อยู่ โครงการนี้สร้างมาเพื่อคุณครับ
สำหรับนักลงทุนที่นิยมมองหาโอกาสการลงทุนใน Rare items เพราะเรารู้กันดีว่าอะไรที่กำลังจะหาไม่ได้อีกแล้วและเป็นที่ต้องการของคนทั่วโลกราคาจะสูงขึ้นต่อเนื่องในระยะยาวเสมอ ถ้าคุณเป็นนักลงทุนที่มองหา Premium Capital Gain การซื้อ Chalermnit เป็นหนึ่งในการลงทุนที่น่าสนใจครับ
ถ้าคุณคือคนที่ผมเพิ่งพูดถึง ผมอยากชวนให้เข้ามาดูโครงการนี้ครับ ด้วยศักยภาพระดับ Japanese Super Luxury และทำเลที่คุณจะไม่สามารถเป็นเจ้าของได้อีกแล้วในอนาคต ผมเชื่อว่า CHALERMNIT ART DE MAISON จะเป็นตัวเลือกที่ใช่สำหรับคุณ
ที่สำคัญคือ โครงการผ่าน EIA เริ่มก่อสร้างแล้ว คาดว่าแล้วเสร็จไม่เกินกลางปี 2563 เหมือนใช้เวลาก่อสร้างนานนะครับ แต่ผมเชื่อว่า Areeya ต้องการให้ CHALERMNIT | ART DE MAISON ออกมาสมบูรณ์แบบทุกรายละเอียด เฉกเช่นงานประณีตศิลป์

CHALERMNIT | ART DE MAISON จาก Areeya เริ่มต้น 10 ล้านบาท เปิดชมห้องตัวอย่างเร็วๆ นี้ สนใจสอบถามรายละเอียดเพิ่มเติม

สามารถลงทะเบียนผ่านหน้าเว็บไซต์ได้ที่ http://www.chalermnit.com/

Chalermnit Presentation VDO:
สอบถามรายละเอียดเพิ่มเติม
Tel. 1797
Livinginsider - Weekly Insight Report [01-07 Feb 2026]
2026-02-10
Chinese New Year เฮงรับอั่งเปา รับเครดิตเพิ่มมากกว่า + Voucher Central
2026-02-05
Livinginsider - Weekly Insight Report [25-31 Jan 2026]
2026-02-02
New Year Gift for You โปรแรงต้อนรับปีใหม่ ฟรี iStock และของแถมพรีเมียมสุดพิเศษ
2026-01-30
Livinginsider - Weekly Insight Report [18-24 Jan 2026]
2026-01-26
🏙 For Rent | Art de Maison ✨ Luxury Low-rise Residence ใจกลางสุขุมวิท 📐 96 sqm 🛏 2 Bedrooms | 2 Bathrooms 🏢 Low-rise Luxury Project 💰 99,000 THB / month ✨ ห้องขนาดใหญ่ โปร่ง อยู่สบาย ✨ ดีไซน์หรู โทน Modern Luxury ✨ ฟังก์ชันลงตัว เหมาะอยู่อาศัยจริง
ข้อมูลละเอียดดีครับ ขอบคุนสำหรับ ข้อมูลนะครับ
เขียนรีวิวน่าอ่าน เทคนิคการเขียนดีค่ะ
ชอบไอเดียค่ะ ได้แบบใหม่ๆอีกเยอะเลย