หน้าแรก
พลัม โชคชัย 4
“LIVE PLAY EAT”
ห้องประกาศซื้อ-ขาย พลัมคอนโด โชคชัย 4
ในปัจจุบันที่คอนโดราคาแพงจนมนุษย์เงินเดือนทั่วไปได้แค่ฝัน การจะหาคอนโดซักที่ในราคาที่ไม่เกินกำลังตัวเองเกินไปและต้องอยู่ในย่านที่มีทุกอย่างพร้อมสำหรับการใช้ชีวิตแบบเมืองหลวงด้วย ทำให้มนุษย์เงินเดือนหลายคนตั้งคำถาม ว่าย่านไหนที่ ....
"อยู่ในเมือง"
"เดินทางสะดวก"
"หาของกินง่าย"
"ไลฟ์สไตล์ 24 ชั่วโมง"
"ใกล้ห้างสรรพสินค้า"
"ราคาไม่แพง"
โชคชัย 4
เปรียบเสมือนศูนย์กลางของถนนลาดพร้าว ที่มีครบทุกอย่าง แต่ที่ทำให้โชคชัย 4 มีการพัฒนาแบบก้าวกระโดดในช่วงหลังๆมานี้คือ การพัฒนาของเส้นเลียบทางด่วนรามอินทรา ซึ่งเป็นถนนที่เชื่อมต่อกับย่านโชคชัย 4

ปัจจุบันเลียบทางด่วนรามอินทรา แทบจะเรียกได้ว่าเป็นที่ย่านของบ้านหรูระดับไฮโซ เพราะแค่ทาวน์โฮมย่านนี้ก็ราคา ไม่ต่ำกว่า 8 ล้านแล้ว บวกกับการมาของ Central East Ville ยิ่งทำให้ย่านนี้คึกคักยิ่งกว่าเดิม พลอยให้ย่านโชคชัย 4 ซึ่งเป็นย่านที่้เชื่อมกับเลียบทางด่วนรามอินทรา มีโครงการหลายๆประเภทเข้ามาพัฒนา ทั้ง บ้าน คอนโด และ คอมมูนนิตี้มอลล์ ใครผ่านไปย่านโชคชัย 4 เดี๋ยวนี้ก็คงสงสัยว่าทำไม มี คอมมูนนิตี้มอลล์ และร้านอาหารเก๋ๆ เพิ่มมากขึ้นเรื่อยๆ
จะว่าไปแล้วย่านนี้มีไลฟ์สไตล์แทบครบทุกอย่าง ไม่ว่าจะเป็นอาหารการกิน ห้างสรรพสินค้า โรงพยาบาล โรงเรียน ฯลฯ เดินทางก็สะดวก มีรถสาธารณะผ่านตลอด




โดยเฉพาะแหล่งอาหารการกินที่นี่ขึ้นชื่อมากๆ เพราะมีให้เลือกเยอะสุดๆ ไม่ว่าจะเป็น เฝอ 54, แหนมเนืองคุณอ้อม, เจ๊เกียงกองปราบ, ตลาดโต้รุ่ง "อร่อยกันได้ทุกวันโดยไม่ซ้ำกันเลย"

“LIVE PLAY EAT” แนวคิด 3 คำสั้นๆของ พลัมคอนโด โชคชัย 4 ที่บ่งบอกถึงไลฟ์สไตล์ย่านนี้ได้ชัดเจนมาก
LIVE…ตอบโจทย์ความสมดุลของคุณภาพชีวิตการทำงานและอยู่อาศัย พร้อมสิ่งอำนวยความสะดวกสบายครบครัน
PLAY…ให้คุณสนุกสนานและสังสรรค์ในวันว่างกับเพื่อนพ้อ
EAT…เต็มอิ่มกับร้านอาหารเจ้าดังมากมายที่รายล้อม ใกล้แค่เดิน
วันนี้เราจะพามาดูคอนโดใหม่ล่าสุดอย่าง พลัมคอนโด โชคชัย 4 ของ บริษัท พฤกษาเรียลเอสเตท คอนโดที่จัดได้ว่าอยู่ในโลเคชั่นที่เป็นใจกลางของย่านโชคชัย 4 เลยทีเดียวครับ

พลัมคอนโด โชคชัย 4 อยู่ห่างจากปากถนนลาดพร้าวประมาณ 2 กิโลเมตร เลยตลาดโต้รุ่ง และ รพ.เปาโลเพียงนิดเดียว โครงการฯ ที่ตั้งอยู่บนถนนโชคชัย 4 ระหว่างซอย 43 และซอย 45 เป็นถนนใหญ่ของโชคชัย 4 เลยนะครับ ไม่ได้เข้าซอยแบบคอนโดอื่นๆ แถวนี้เดินทางเข้า-ออกได้อย่างสะดวกสบาย ทั้งถนนลาดพร้าว ถนนรัชดาภิเษก ถนนเอกมัย-รามอินทรา และถนนเกษตร-นวมินทร์
การเดินทางสำหรับคนไม่อยากใช้รถส่วนตัวก็ มีรถกะป้อวิ่งผ่านมาเกือบทุกนาที แถมยังมีวินมอเตอร์ไซด์หน้าปากซอยและแท็กซี่วิ่งผ่านไปผ่านมาตลอดเวลาแม้จะดึกๆก็ยังพลุกพล่าน ไม่เปลี่ยวเลย กลับบ้านค่ำๆก็ไม่ต้องกลัวอะไรมาก

มาถึงสำนักงานขายกันแล้วครับ สำนักงานขายพลัมคอนโด โชคชัย 4 อยู่ที่ GREEN PLAZA ริมถนนลาดพร้าว-วังหิน ซอย 77 ตรงข้าม คอมมูนนิตี้มอลล์ THE JAS วังหิน


มาดูตัวโครงการกันเลยครับ เป็นคอนโดแบบ LOW RISE 8 ชั้น จำนวน 2 อาคาร บนเนื้อที่ ประมาณ 4 ไร่ มี 496 ยูนิต มีขนาดให้เลือกถึง 5 ขนาด เริ่มตั้งแต่ 22.5 - 48.5 ตร.ม. พร้อมมีที่จอดรถรวมซ้อนคันประมาณ 40%


ภายในโครงการฯ มีสิ่งอำนวยความสะดวกต่างๆ ที่ไว้บริการอย่างคอนโดหรูๆทั่วไปเลยครับ
Day Pool มอบความสบายในยามพักผ่อนในรูปแบบรีสอร์ท ด้วยขนาดสระ 5 x 11 เมตร


Night Pool เพิ่มเสน่ห์ให้กับการพักผ่อนอันแสนโรแมนติก ด้วยขนาดสระ 5 x 25 เมตร สำหรับการออกกำลังกายอย่างจริงจัง พร้อมแยกสระเด็กให้อีกด้วย


Relax Garden สวนสวยพักผ่อน 2 สไตล์ อยู่บริเวณด้านล่างอาคาร B และบริเวณด้านบนดาดฟ้าอาคาร A ให้ได้เลือกสัมผัสบรรยากาศเขียวชอุ่ม สดชื่นได้ทั้ง 2 บรรยากาศ

LIVING LOUGE ให้คุณได้มานั่งชิลล์ๆ หรือมานั่งอ่านหนังสือสบายๆ

FITNESS ห้องออกกำลังกาย ที่ครบครันด้วยเครื่องออกกำลังกายให้เลือกใช้บริการ

Lobby ต้อนรับบรรยากาศสบายๆ

มาดูห้องตัวอย่างกันบ้างครับ
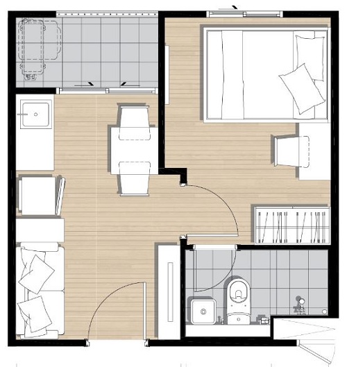
ขนาด 1 ห้องนอน 24.5 ตร.ม.
ดูจากแปลนจะเห็นว่า ออกแบบพื้นที่ใช้สอยได้อย่างลงตัว ไม่อึดอัด ครบทุกฟังก์ชั่นที่แยกสัดส่วนในแต่ละห้องได้อย่างชัดเจน ไม่ว่าห้องนอน ห้องนั่งเล่น ห้องน้ำ ห้องครัว ฯลฯ

แยกสัดส่วนห้องนั่งเล่นและบริเวณโต๊ะทานข้าวได้อย่างลงตัว อีกทั้ง มีระยะห่างโซฟาและทีวีพอสมควร นั่งสบาย ไม่อึดอัด


บริเวณครัวติดกับระเบียง จะสามารถเปิดประตูเพื่อระบายอากาศได้ด้วยครับ ชุดครัว Built-In โครงการแถมให้ด้วย

บริเวณพื้นระเบียงจัดพื้นที่สำหรับวางเครื่องซักผ้า

ห้องนอนจัดวางได้อย่างลงตัว ลงเตียง king size พอได้นะครับ

แถม Built-in ตู้เสื้อผ้าให้ด้วย

ห้องน้ำเป็นห้องน้ำแบบสำเร็จ แยกส่วนที่เปียกและส่วนที่แห้ง อุปกรณ์ในห้องน้ำทั้งหมดเป็นของ COTTO

ขนาด 1 ห้องนอน 22.5 ตร.ม.
จากแปลนจะเห็นว่า ใช้ทุกพื้นที่ในการจัดวางอย่างคุ้มค่าให้มากที่สุด พร้อมแยกฟังก์ชันในแต่ละห้องอย่างเป็นสัดส่วน

มีการแยกสัดส่วนห้องนั่งเล่น ห้องนอน ด้วยประตูกระจกสไลด์




ห้องนอนวางเตียง king size ยังได้ แต่อาจเบียดๆนิดนึง

แถม Built-in ตู้เสื้อผ้าให้ด้วย

บริเวณครัวติดกับระเบียง จะสามารถเปิดประตูเพื่อระบายอากาศได้ด้วยครับ ชุดครัว Built-In โครงการแถมให้ด้วย

อีกฝั่งนึงของครัวเป็นห้องน้ำ

ห้องน้ำแยกส่วนที่เปียกและส่วนที่แห้ง อุปกรณ์ในห้องน้ำทั้งหมดเป็นของ COTTO

ลืมบอกไปทุกห้องที่นี่ติดวอลเปเปอร์ให้ด้วยนะครับ
หลังจากที่เราได้มาชมคอนโด พลัม โชคชัย 4 กันแล้ว ต้องบอกว่าที่นี่ อุดมสมบูรณ์มากจริงๆ ใครชอบกินนี่ อ้วนได้เลยนะครับ เพราะร้านอาหารของกินเยอะมากๆ มีให้ตลอดเวลา 24 ชม. ที่สำคัญคือ ค่าครองชีพไม่สูงครับ สินค้าและอาหารราคาไม่แพงเลย ใช้ชีวิตสบายๆเงินเหลือๆเลยครับ
อนาคตย่านโชคชัย 4 จะเป็นย่านที่มีการพัฒนาอีกหลายอย่าง เริ่มเห็นได้ชัดเจนว่าตอนนี้มีคอมมูนนิตี้มอลล์และร้านอาหารเก๋ๆทยอยเกิดขึ้นเรื่อยๆ การที่ย่านนี้เชื่อมต่อและเข้าออกได้จากถนนเลียบทางด่วนรามอินทราที่มีห้างอย่าง Central East Ville, CDC, Crystal Park, Lotus ยิ่งทำให้ย่านโชคชัย 4 มีไลฟ์สไตล์สมบูรณ์พร้อมมากขึ้น นี่ยังไม่รวมถึงรถไฟฟ้าสายสีเหลือง(สถานีโชคชัย) ที่กำลังจะสร้างอีกในอนาคต รับรองว่าอีกไม่นานโชคชัย 4 จะเป็นย่านที่น่าอยู่ที่สุดบนถนนลาดพร้าวแน่ๆครับ
ใครสนใจรีบมาดูเลยครับ สำหรับแค่ 100 ห้องแรก ที่จองในเดือนนี้ จะได้รับเฟอร์นิเจอร์ เพิ่มเติมฟรีอีกหลายรายการทั้งเตียง, โซฟา, โต๊ะรับประทานอาหาร และชั้นวางโทรทัศน์
มาดูกันได้เลย ที่สำนักงานขายฯ Green Plaza
ราคาเริ่มต้น 1.45 ล้านบาท*
สอบถามเพิ่มเติมโทร 1739
ลงทะเบียนเพื่อรับสิทธิพิเศษ คลิกที่นี่
Livinginsider - Weekly Insight Report [30 Nov-06 Dec 2025]
2025-12-08
นี่คือโอกาสที่จะสร้างรายได้ค่าเช่าเพิ่มขึ้นสูงสุด 2 เท่า | ให้เช่าคอนโดระยะสั้นรายเดือน กำลังมาแรงShort-Term & Monthly Rental Trend 2025
2025-12-03
Central Pattana Residence สร้างสังคมแห่งการอยู่อาศัยที่สมบูรณ์แบบ ก้าวสู่การครองแชมป์ ภาคตะวันออก-ตะวันออกเฉียงเหนือ
2025-12-02
Central Pattana Residence ขึ้นแท่นผู้นำตลาดอสังหาฯ ภาคใต้ ขยายอาณาจักรผ่านกลยุทธ์ Retail-Led Mixed-Use Development
2025-12-02
‘Central Pattana Residence’ ครองผู้นำตลาดที่อยู่อาศัยภาคเหนือ สร้างแลนด์มาร์กเมืองแห่งอนาคต สะท้อนความเป็นอันดับหนึ่งที่ลูกค้าไว้วางใจสูงสุด
2025-12-02
ดีมากๆ เป็นเว็บที่ให้ข้อมูลดีค่ะ
เป็นกำลังใจให้ทีมงาน พัฒาบทความดีดี จะค่อยติดตามตลอดครับ
เยี่ยมมากๆ ครับ น่าสนใจ FC เลยครับ
เขียนดีขนาดนี้ ไม่ต้องไปดูโครงการจริงแล้วมั่งคะเนี่ย