หน้าแรก
บางทีคนเราก็ต้องการหลีกหนีความวุ่นวายในเมือง กลับสู่พื้นที่สงบท่ามกลางบรรยากาศธรรมชาติไว้ผ่อนคลายจากความเครียด เพียงแค่พื้นที่เล็กๆ ที่สามารถปลดปล่อยอารมณ์และดื่มด่ำเสน่ห์แห่งธรรมชาติได้เท่านั้นก็เพียงพอแล้ว
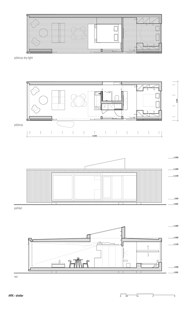
บ้านพักใจกลางผืนป่าในประเทศสโลวาเกียหลังนี้ถูกเนรมิตขึ้นโดยสถาปนิก Michiel De Backer และ Martin Mikovčák ด้วยแนวคิดการสร้างบ้านพักใจกลางธรรมชาติที่สะดวกสบายต่อการใช้ชีวิตอยู่ และสามารถสัมผัสกับธรรมชาติโดยรอบได้แทบทุกประสาทสัมผัส ไม่ว่าจะเป็นการมองเห็นหรือได้ดื่มด่ำกับบรรยากาศธรรมชาติ เหมือนบ้านหลังนี้เป็นส่วนหนึ่งของธรรมชาติยังไงยังงั้น

ตัวบ้านมีขนาดเพียง 40 ตร.ม. นี้สามารถเปิดมุมชมวิวได้ถึง 5 จุดด้วยกันและแต่ละจุดก็สามารถเปิดออกไปเพื่อสัมผัสกับบรรยากาศใจกลางผืนป่า และอีกหนึ่งความสร้างสรรค์นั่นก็คือสามารถสัมผัสกับทิวทัศน์ที่ต่างกัน 5 จุด รอบๆ ตัวบ้าน

ตกแต่งด้วยกระจกขนาดใหญ่ทั้งด้านหน้าและด้านข้างเรียกได้ว่าเทควิวได้แบบ Panoramic อีกทั้งยังสามารถเปิดรับลมธรรมชาติเสมือนคุณกำลังนั่งตากอากาศอยู่ภายนอกบ้านท่ามกลางธรรมชาติ ในส่วนของห้องน้ำก็ยังคงมีกระจกช่วยสร้างแสงแห่งธรรมชาติให้สะท้อนเข้ามายังตัวบ้านได้


ส่วนห้องนอนจะตั้งอยู่ชั้น 2 พร้อมระบบทำความร้อน และทำความเย็นโดยที่สามารถตั้งค่าไว้ล่วงหน้าได้ อีกทั้งยังมีฟังก์ชั่นเสริมคืออ่างจากุซซี่บริเวณใต้เตียงนอน เพียงพับเตียงนอนขึ้นก็จะกลายเป็นอ่างจากุซซี่ เรียกได้ว่าเป็นมุมผ่อนคลายที่ประหยัดพื้นที่และสามารถเสพย์ภูมิทัศน์ภายนอกยามเหนื่อยล้า


เรียกได้ว่าเป็นบ้านพักตากอากาศขนาดย่อมเพียบพร้อมไปด้วยฟังก์ชั่นการใช้งานจริง อีกทั้งยังหลอมรวมธรรมชาติเข้ามาเป็นส่วนหนึ่งในการออกแบบในบ้านพื้นที่แคบๆ ดึงความสวยงามของภูมิทัศน์ภายนอกมาใช้ได้อย่างสมบูรณ์แบบ


ขอขอบคุณภาพจาก https://www.archdaily.com
จิมเบอร์เกอร์ แอนด์ เบียร์ : Jim's Burger & Beer
2018-06-07
Café Loftberry คาเฟ่เท่ห์ๆ สไตล์โมเดิร์นลอฟท์ในสวนผึ้ง
2018-08-10
จุดเด่นห้องสตูดิโอ เหมาะกับใครกันแน่?
2020-02-18
ไอเดียเปลี่ยนของใช้ในบ้าน เป็นเครื่องออกกำลังกาย ฟิตจัง ตังค์อยู่ครบ หลบ COVID-19
2020-04-01
Thai Niyom Cuisine สำรับอาหารไทย ตำรับไทยนิยม
2018-06-07
ชอบการเขียนลงทุนค่ะ
รูปภาพประกอบสวยมากเลยค่ะ
กำลัังตัดสิ้นอยู่ ขอบคุณฮะ
รีวิวดี ภาพชัดเจน