หน้าแรก
ห้องประกาศ ขาย เช่า พลัม คอนโด เซ็นทรัล สเตชั่น ดูที่นี่..
ตลอด 10 ปีที่ผ่านมา ต้องยอมรับว่าทำเลตลอดเส้น งามวงศ์วาน - รัตนาธิเบศร์ เปลี่ยนไปอย่างมากทีเดียวครับ หลังการมาของ MRT สายสีม่วง - ถนนตัดใหม่หลายสาย นำความเจริญเข้ามาสู่พื้นที่ ตอนที่รถไฟฟ้าสายสีม่วงเปิดใช้งานแรกๆ เคยมีคนวิจารณ์กันว่า สายนี้จะมีคนใช้งานมั้ย แต่แล้ววันนี้ก็พิสูจน์ได้ชัดเจนแล้วว่า มีผู้ใช้บริการเยอะมากขึ้นเรื่อยๆ โดยเฉพาะหลังจากที่มีการเชื่อมต่อสายสีม่วงเข้ากับสายสีน้ำเงินตรงสถานีบางซื่อ ก็ยิ่งทำให้หลายคนเข้าเมืองง่ายขึ้นมาก โดยเฉพาะคนที่ทำงานแถวบางซื่อและจตุจักร

สำหรับเส้นงามวงศ์วาน - รัตนาธิเบศร์ ส่วนตัวคิดว่ามีเพียง 3 จุดที่น่าสนใจและมีศักยภาพที่จะมีมูลค่าสูงขึ้นในอนาคต นั่นก็คือ
แคราย
พระนั่งเกล้า
สามแยกบางใหญ่
ทำเลมีจุดขายต่างกันชัดเจนครับ แคราย เดินทางเข้ากรุงเทพฯ ชั้นในง่ายที่สุด ส่วนพระนั่งเกล้า จะเน้นคอนโดฯ ริมแม่น้ำเจ้าพระยา ราคาย่อมเยา แต่ทำเลที่น่าสนใจและมาแรงมากที่สุดตอนนี้คือ ‘สามแยกบางใหญ่’ เพราะเป็นจุดเชื่อมต่อที่สำคัญในการเดินทาง ระหว่างกรุงเทพฯ - จังหวัดฝั่งตะวันตก (นครปฐม สุพรรณบุรี กาญจนบุรี) ในอีก 3-4 ปีข้างหน้า ‘Motorway สาย 81’ (บางใหญ่-กาญจนบุรี) จะทำให้สามารถเดินทางสู่นครปฐม - กาญจนบุรี รวดเร็วกว่าเดิม 2-3 เท่าตัว ไม่ต้องทนรถติดอีก ตอนนี้เริ่มก่อสร้างแล้วนะครับ
ซึ่งสิ่งที่พิสูจน์ว่าตรงนี้จะเป็นทำเลแห่งอนาคตในไม่ช้านี้ก็คือ การมาของ ห้างสรรพสินค้าอย่าง Central Plaza Westgate ครับ อย่างที่รู้กันว่าระดับเครือเซ็นทรัลมีฝ่ายวิจัยการตลาดที่สุดยอดอยู่แล้ว การมาสร้างห้างที่เป็นจุดยุทธศาตร์ตรงนี้ มันแสดงว่าไม่ธรรมดาแน่นอนครับ

พลัม คอนโด เซ็นทรัล สเตชั่น
พลัม คอนโด เซ็นทรัล สเตชั่น คอนโดฯ High-Rise แห่งเดียวใกล้สามแยกบางใหญ่ การันตีวิวสวยรอบด้าน ส่วนกลางจัดเต็มชุดใหญ่ตั้งแต่ชั้น 1 ถึงชั้นดาดฟ้า ที่สำคัญคือติดศูนย์การค้า Central Plaza Westgate แบบว่า รั้วเดียวกันเลยครับ ติดกว่านี้ไม่มีอีกแล้ว
พูดง่ายๆว่านี่คือ คอนโดติดห้างสมชื่อเลยครับ
หายากนะครับ คอนโดฯ อะไรติดห้างแบบรั้วเดียวกัน เหมาะกับ Lifestyle คนรุ่นใหม่ ไม่มีอะไรทำก็เดินห้างตากแอร์ หาอะไรอร่อยๆ ทาน หิ้ว Laptop มานั่งทำงานก็ได้ เดินทางสะดวก ติดถนนสายหลัก (ถ.รัตนาธิเบศร์ - ถ.กาญจนาภิเษก) ขึ้นเหนือลงใต้ เข้าเมือง ออกต่างจังหวัดสบายๆ
ตอนนีี้ Phase แรกพร้อมเข้าอยู่แล้วครับ ถือว่าเป็นเวลาเหมาะสมมากที่จะมาหาซื้อห้องสวยๆกัน เพราะคุณจะได้เห็น ห้องจริง วิวจริง ก่อนจ่ายเงิน และที่สำคัญไม่ต้องมาผ่อนดาวน์แล้ว กู้ธนาคารแล้วเข้าอยู่ได้เลย

เป็นคอนโดที่มีพื้นที่สีเขียวกระจายอยู่ตามจุดต่างๆเยอะเลยครับ



LOCATION
ที่ตั้งโครงการสังเกตง่ายครับ ติดศูนย์การค้า Central Plaza Westgate สะดวกมากไม่ต้องวนรถให้วุ่นวาย เดินเข้าห้างได้เลย ห่างจากสถานี MRT สถานีสามแยกบางใหญ่ ประมาณ 500 เมตร หรือ MRT สถานีตลาดบางใหญ่ (700 เมตร) รอบด้านอุดมสมบูรณ์ระดับ 10 นอกจาก Central ยังมี Big C บางใหญ่ - Big C Extra, Index Living Mall, The Square, ฺBangyai Night Bazaar เลือกซื้อของกินของใช้ทั่วไป และต้นปีหน้าเตรียมพบกับ IKEA บางใหญ่ สาขาใหม่ลำดับที่ 2 ของประเทศ

สำหรับคนชอบซื้อของแต่งบ้าน ชอบแต่งห้อง ชอบเลือกเฟอร์นิเจอร์ ข้าวของเครื่องใช้ต่างๆ ไม่ต้องไปถึงบางนาแล้ว เพราะ IKEA บางใหญ่ พร้อมให้ละลายทรัพย์ช่วงต้นปี 2561 การมาของ IKEA ตอกย้ำศักยภาพของทำเลย่าน ‘บางใหญ่’ เป็นอย่างดีทีเดียว
ด้านการเดินทางด้วยรถส่วนตัว สามารถใช้เส้นทาง ถ.รัตนาธิเบศร์ - ถ.ราชพฤกษ์ หรือ ถ.กาญจนาภิเษก รถหนาแน่นบ้างช่วงเร่งด่วนครับ ส่วนท่ารถเมล์ / รถตู้ อยู่บริเวณตลาดบางใหญ่เกือบทั้งหมด
FACILITIES
ที่นี่ส่วนกลางจัดเต็มตามไซส์โครงการครับ เริ่มจาก Lobby มีพื้นที่ต้อนรับแขก (Guest Living) และโซนนั่งเล่นของลูกบ้าน (อาคารจอดรถประมาณ 35% (รวมซ้อนคัน) ของจำนวนยูนิต )



ชั้น 4-5 เป็นโซนผ่อนคลายสำหรับทุกคนครับ มีทั้ง Co-Working Space, Game Room, Reading Room พร้อม Mini Theatre เชียร์บอล ดูภาพยนตร์ ฯลฯ เหมือนห้องนั่งเล่นในบ้าน ตรงนี้ผมชอบมากๆ เพราะชอบหาที่นั่งทำงานอยู่แล้ว





ขึ้นมาที่ชั้น 37 จะเป็นพื้นที่สวน (Sky Garden) พร้อมฟิตเนส (Sky Fitness), ห้องโยคะ - ต่อยมวย และเลานจ์นั่งเล่น (Sky Lounge) เทควิวรอบด้านทั้ง 4 ทิศ



นอกจากนี้ยังมีห้องซาวน่า (Sauna) แยกชายหญิงด้วย

สำหรับบนชั้น 38 จะมีสระว่ายน้ำพร้อม Pool Terrace นอนเล่นพักผ่อน สัมผัสบรรยากาศชั้น Roof Top ชมวิวรอบด้านโครงการ บอกเลยว่าพิเศษมากครับ เพราะอนาคตไม่มีโครงการอื่นๆ ขึ้นมาบล๊อกวิวอย่างแน่นอน





PRODUCT WALKTHROUGH
พาชมห้องตัวอย่าง
ปัจจุบันโครงการเปิดขาย 2 เฟส คือ (เฟส 1,2) โดยเฟส 1 ก่อสร้างแล้วเสร็จ และเฟส 2 คืบหน้ากว่า 80% ณ สำนักงานขายมีห้องตัวอย่าง 2 แบบ คือ แบบ 1 ห้องนอน และ Combine 2 (ห้องนอน) ให้ชมครับ
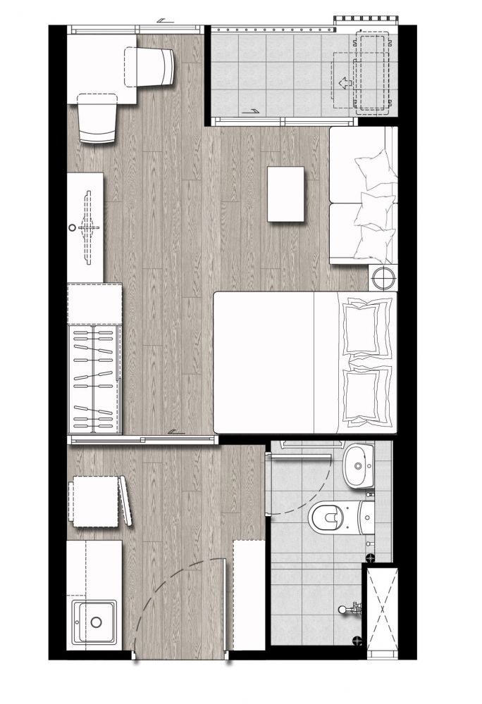
1 ห้องนอน (23.5 ตรม.)
ทั้งโครงการมีอยู่ไม่กี่ยูนิต สำหรับ 1-ห้องนอน 23.5 ตรม. โดย Layout แปลกกว่าชาวบ้านเล็กน้อยคือ เป็นยูนิตหน้าแคบแต่ลึกครับ เหมาะกับอาศัย 1-2 คน และพื้นที่ครัวปิด เหมาะกับทำอาหารหนักๆ แบบไม่ต้องกังวลเรื่องกลิ่น

เปิดห้องเข้ามาพบกับพื้นที่ครัวครับ Pantry มีขนาดพอดีๆ สำหรับประกอบอาหาร Top ลามิเนต มีชั้นวางของบิวท์อินให้ ส่วนตรงข้าม ห้องตัวอย่างวางตู้ลิ้นชัก / บานพับ เป็นไอเดียคร่าวๆ ผู้อาศัยสามารถบิวท์อินตู้เก็บของเพิ่มได้เช่นกัน



ห้องน้ำให้สุขภัณฑ์ตามมาตรฐาน ส่งมอบจริงให้ตามนี้ทุกยูนิตเลยครับ

ส่วน Living คล้ายยูนิต Studio พื้นที่โล่งๆ สามารถปรับเปลี่ยนตามใจชอบ ห้องตัวอย่างจัดเตียงขนาด 5 ฟุต โซฟา 2 ที่นั่ง ชั้นวางทีวี พร้อมโต๊ะทานอาหาร 2 ที่นั่ง เข้ามุมห้องพอดี



ระเบียงซักล้างค่อนข้างกว้าง ตากผ้าได้ครับ วางระบบท่อ-ปลั๊กไฟสำหรับเครื่องซักผ้าให้เสร็จ

1-Bedroom (24-26.5 ตรม.)
เท่าที่ลองให้หลายคนดู Layout ภาพจริง บอกตรงกันครับว่าดูกว้างดี ไม่อึดอัด 1-ห้องนอน ประเภทนี้มีจำนวนมากที่สุดในโครงการ โดยขนาด 24-26.25 ตรม. ต่างกันเฉพาะขนาดครับ เหมาะกับอาศัย 1-2 คนกำลังดีครับ

เปิดประตูเข้ามาพบกับส่วนนั่งเล่น (Living Room) โซฟาขนาด 2 ที่นั่ง โต๊ะอเนกประสงค์ ชั้นวางทีวีขนาดกลาง เพียงพอสำหรับทีวีขนาด 42-47 นิ้ว


ด้านในเป็นส่วนครัวครับ โครงการบิวท์อิน Pantry ครัวตามมาตรฐาน Top ผิวลามิเนต ชั้นวางของด้านบน ตู้เก็บของ - ลิ้นชักใส่อุปกรณ์ ช่องวางเตาไมโครเวฟ พร้อมอ่างล้างจานขนาดกลาง ตรงนี้สามารถวางโต๊ะทานอาหาร - เก้าอี้ 2 ตัว หรือต้องการประหยัดพื้นที่ ทำเป็นเคาน์เตอร์บิ้วท์อินก็ดี



ห้องนอนหลัก มีประตู-ผนังกั้นสัดส่วน สามารถวางเตียงขนาด 5 ฟุต โต๊ะทำงาน-แต่งตัว ชอบดูทีวีก็แขวนผนังเพิ่มได้ครับ


สำหรับห้องน้ำทำเคาน์เตอร์ยื่นจากผนังเล็กน้อย ไว้วางของจุกจิก สุขภัณฑ์มาตรฐาน ผนังส่วนเปียกให้ตามห้องตัวอย่างครับ แต่ไม่มีฉากกั้นอาบน้ำให้

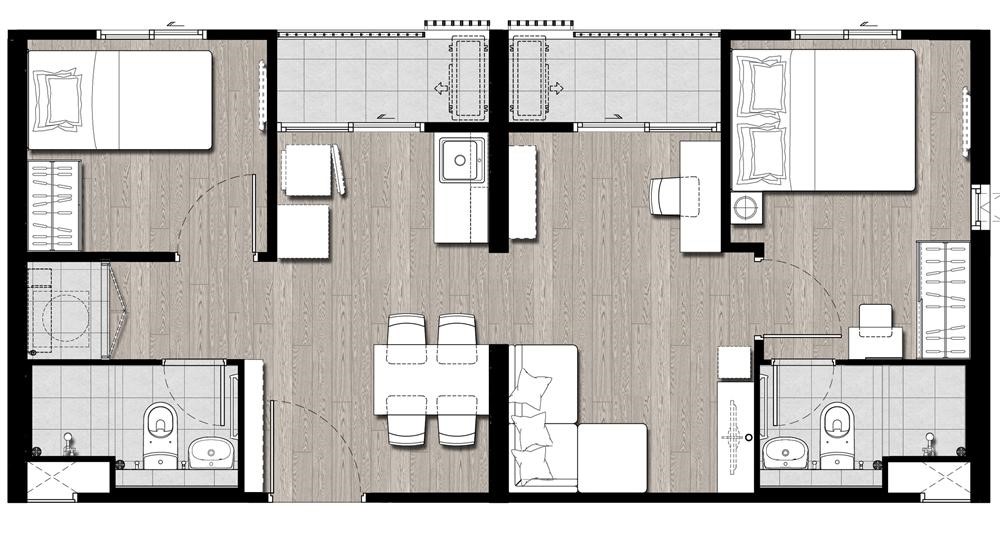
Combined ( 2 ห้องนอน 48 ตรม.)
ยูนิต 2 ห้องนอน เท่ากับนำ 1 ห้องนอน มารวมกัน 2 ยูนิตนั่นเอง อย่างไรก็ดี โครงการมีการ Fixed ตำแหน่งไว้คือ หมายเลข 28-29 ของเฟส 1 เหมาะกับอาศัย 2-3 คนครับ ห้องใหญ่ไม่อึดอัด แถมเป็น 2-Bed / 2-Bath ซะด้วย ลงตัวมากๆครับ เหมาะสำหรับอยู่เป็นครอบครัว พ่อ แม่ ลูกได้เลย

เปิดประตูเข้ามาพบกับส่วนครัว (Kitchen) พร้อมโต๊ะทานอาหาร 4 ที่นั่ง พื้นที่ครัว จริงๆห้องนี้ พื้นที่ครัวถือว่าไม่เล็กนะครับ ใช้งานได้มากกว่าแบบ 1 ห้องนอนมากๆ พื้นที่ระเบียงเหมาะกับใช้ตากผ้า




พื้นที่ระเบียงพอตากผ้าได้ครับ

ด้านขวามือเป็นส่วนนั่งเล่น (Living) แบ่งเป็นโซน Leisure นั่งนอนดูทีวี วางโซฟาเข้ามุมตัว L ได้เลย และโต๊ะทำงาน พื้นที่ระเบียงสามารถวางโต๊ะนั่งเล่นขนาดเล็ก นั่งชมวิวตากลมสบายๆ


ห้องนอนหลัก (Master Bedroom) วางเตียงขนาด 5 ฟุต ตู้เสื้อผ้าบิวท์อิน โต๊ะแต่งตัว และมีห้องน้ำในตัว ฟังก์ชั่นเหมือน 1 ห้องนอน ทุกประการ



กลับมาส่วนครัวด้านซ้ายมือ ตรงนี้โครงการทำห้องซักล้างไว้ครับ เปิดมาพบกับจุดวางเครื่องซักผ้า - ชั้นวางอเนกประสงค์ พร้อมห้องน้ำส่วนกลาง


และห้องนอนเล็ก สามารถวางเตียงขนาด 3.5 ฟุต - ตู้เสื้อผ้าบิวท์อิน และติดตั้งทีวีแขวนผนังได้

สรุป
ตอนนี้เป็นโอกาสดีสำหรับการซื้อคอนโดฯ แนวเส้น MRT สายสีม่วงครับ แม้ตัวเลือกจะเยอะตามทำเลแต่สำหรับ ‘พลัม คอนโด เซ็นทรัล สเตชั่น’ คือคอนโดที่ติดศูนย์การค้าใหญ่ถึง 2 แห่ง บนจุดตัดถนน 2 สายหลัก ใกล้ 2 สถานี MRT สายสีม่วง จัดเต็มส่วนกลางตั้งแต่ชั้น 6 ยันชั้นดาดฟ้า ที่สำคัญทั้งหมดนี้สามารถเป็นเจ้าของในราคาเริ่มต้นเพียง 1.39 ล้านบาทเท่านั้น ! ถือว่าคุ้มค่ามากๆครับ สำหรับคนที่ทำงานย่านรัตนาธิเบศก์จนถึงบางใหญ่

หากซื้อเพื่ออาศัยเอง ควรมีรายได้ประมาณ 25,000 บาทขึ้นไป ทำงาน Zone บางใหญ่ / บางบัวทอง / ไทรน้อย, โดยสาร MRT สายสีม่วงเป็นหลัก ต้องการคอนโดฯ ติดห้าง ใช้ชีวิตสะดวก เดินทางออกต่างจังหวัด (กลับบ้าน) แปบเดียว
สำหรับการซื้อลงทุน แนะนำปล่อยเช่าเป็นหลัก 1-Bedroom (24 ตรม.) คาดหวังค่าเช่าประมาณ 7,500-8,000 บาท / เดือน หลังหักค่าใช้จ่าย Yield ประมาณ 4.5-5% ค่อนข้างโอเค ด้าน Capital Gain มองว่ามี Upside เพิ่มขึ้นหลังโปรเจค Motorway สายบางใหญ่-กาญจนบุรี เปิดใช้งาน (ปี 2563)

สนใจสอบถามรายละเอียดโปรโมชั่น ชมห้องตัวอย่าง สามารถติดต่อ ณ สำนักงานขาย หรือนัดหมายโทร 1739
นี่คือโอกาสที่จะสร้างรายได้ค่าเช่าเพิ่มขึ้นสูงสุด 2 เท่า | ให้เช่าคอนโดระยะสั้นรายเดือน กำลังมาแรงShort-Term & Monthly Rental Trend 2025
2025-12-03
Central Pattana Residence สร้างสังคมแห่งการอยู่อาศัยที่สมบูรณ์แบบ ก้าวสู่การครองแชมป์ ภาคตะวันออก-ตะวันออกเฉียงเหนือ
2025-12-02
Central Pattana Residence ขึ้นแท่นผู้นำตลาดอสังหาฯ ภาคใต้ ขยายอาณาจักรผ่านกลยุทธ์ Retail-Led Mixed-Use Development
2025-12-02
‘Central Pattana Residence’ ครองผู้นำตลาดที่อยู่อาศัยภาคเหนือ สร้างแลนด์มาร์กเมืองแห่งอนาคต สะท้อนความเป็นอันดับหนึ่งที่ลูกค้าไว้วางใจสูงสุด
2025-12-02
‘Central Pattana Residence’ สรรค์สร้างมาตรฐานอสังหาฯ ครบวงจร ทุกโครงการคือสัญลักษณ์แห่งความเชื่อมั่นและคุณค่าเหนือระดับ สู่ความสำเร็จการเป็น Top of Mind ในภูมิภาคทั่วไทย
2025-12-02
ดีมากเลยค่ะ น่าติดตามข้อมูล
บทความดีๆ อ่านแล้วตัดสินใจง่ายขึ้นเลยค่ะ
อันนี้รีวิวหรือวิทยานิพนธ์คะ ละเอียดจริงๆ สุดยอดเลยค่ะ